EasyManua.ls Logo

Johnson Controls ZU Series - Through -12 Unit Physical Dimensions; Physical Dimensions

Johnson Controls ZU Series
75 pages
Print Icon
To Next Page IconTo Next Page
To Next Page IconTo Next Page
To Previous Page IconTo Previous Page
To Previous Page IconTo Previous Page
Loading...
5566216-BIM-B-1118
Johnson Controls Ducted Systems 11
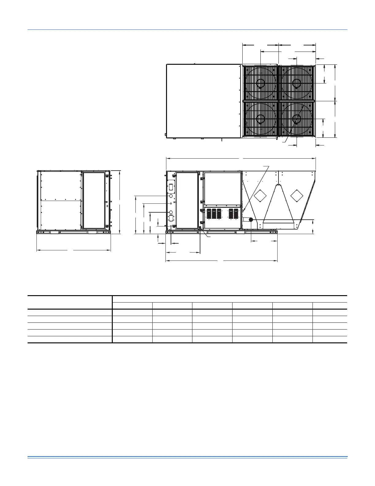
Figure 9: ZU-12 physical dimensions
Table 5: ZU-06 through -12 unit physical dimensions
Unit model number
Dimension (in.)
ABCDEF
ZU-06 42 89 22 1/8 18 3/16 15 3/16 6 3/16
ZU-07 42 89 22 1/8 18 3/16 15 3/16 6 3/16
ZU-08 50 3/4 89 30 3/16 24 3/16 17 3/16 6 3/16
ZU-10 50 3/4 89 30 3/16 24 3/16 17 3/16 6 3/16
ZU-12 50 3/4 119 1/2 30 3/16 24 3/16 17 3/16 6 3/16

Table of Contents

Related product manuals