EasyManua.ls Logo

JRC JMA-9123-7XA - Nke-2254

JRC JMA-9123-7XA
316 pages
To Next Page IconTo Next Page
To Next Page IconTo Next Page
To Previous Page IconTo Previous Page
To Previous Page IconTo Previous Page
Loading...
6ļ¼82
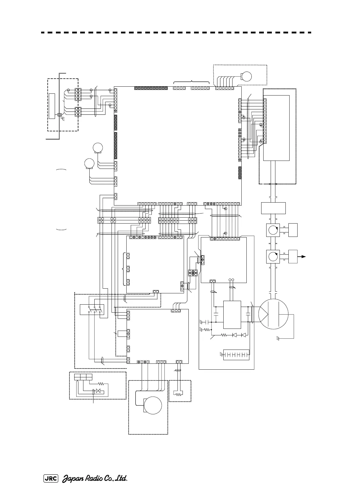
JMA-9100/7100 Installation Manual > 6.Appendix > 6.4 SCANNER UNIT INTERCONNECTION
6.4.2 NKE-2254
Fig 6-74: NKE-2254 INTERCONNECTION
NKE-2254 / 2254HS
ē©ŗäø­ē·šę©Ÿå†…ęŽ„ē¶šå›³
14.VDE
12.VD_DC
15.VD
9.TGT
10.TGTE
13.TNL
11.TNI
1.BS3
2.BS2
3.BS1
4.TNC
5.+5V
6.-15V
7.+15V
RECEIVER UNIT NRG-162A
RECEIVER CIRCUIT
CMA-866A
J101
BM15B-XASS-TE
T/R CONTROL CIRCUIT
CMC-1205R
1.MONI
2.GS
3.GSE
4.TGT
5.TGTE
6.TNL
7.-15V
8.TNI
9.+15V
10.GND
11.TRG2
1.BS3
2.BS2
3.BS1
4.TNC
5.MicPS
6.VDINE
7.VDIN
8.+5V
1.RXD
2.TXD
3.+5V
4.GND
1.SHORT
2.MAG I
3.X1
4.X2
5.T I
6.T IE
7.+15V
8.GND
9.NC
10.NC
11.NC
12.NC
1.HMCNT
2.+15V
3.GND
1.+15V
2.+12V
3.GND
4.GND
5.-15V
6.10V
7.10VE
8.+5V
1.MC T
2.MBK
3.TISTOP
4.G ND
5.MPS
6.MI ER
1.T IY
2.TIYE
3.BP
4.BPE
5.BZ
6.BZE
1.+12V
2.GN D
3.FAN_ERR1
1.HTER1
2.HVGATE1
3.TISTOP1
4.GND
5.CNT
6.+5V
7.+15V
8.STABY_REQ
9.NC
1.PW1
2.PW2
3.PW3
4.+24V
5.GN D
1.BP+
2.BP-
3.BZ+
4.BZ-
5.TRIG+
6.TRIG-
7.MTR+
8.MTR-
9.MTRE
10.VD+
11.VD-
1.VD
2.VDE
3.MTR+
4.MTR-
J1118
J1103J1104 J1111
J1191
J1110
J1109
TB101
J8
J1106
J1112 J1113
IL -G-12P
IL-G-8P
IL-G-11P
B6P-SHF
IL-G-9P
MSTBA2.5/11-G
IL-G-5P
B3P-SHF
IL-4P
B8P-SHF
IL-G-3P
MAG
PO WER SUPPLY
CIRCUIT
CBD-1682A
1.+15V
2.+12V
3.+8V
4.GND
5.-15V
6.X1
7.X2
8.+5V
1.MC T
2.MBK
3.HSP
4.HT ER
5.TISTOP
6.C 2
7.GND
8.MPS
9.MI ER
2.1A
1.2A
2.1A
1.2A
2.1A
1.2A
1.MH
2.NC
3.MN
1.MH
2.NC
3.MN
1.X1
2.X2
No.2
No.1
2
1
4
35
6
FILTER
J1004
J1003
J 5J 4 J 3
J1001
J1002
J2102
J2101
J2103
ANTENNA
1.SHORT
2.MA G I
3.X1
4.X2
5.TI
6.TIE
7.+15V
B9P-SHF
B8P-SHF
1586514-2
350209-1
IL-10P
350209-2
350209-1
350428-1
MODULATOR
CIRCUIT
CPA-264
MODULATOR UNIT
INTERCONNECTION
CMB-404
D.L
ā‘ ā‘”
ā‘¢
ā‘ ā‘”
ā‘¢
ļ¾ļ¾„ļ¾žļ¾˜
ļ½·
C201
0.01UF 1K V
C202
0.22UF 200V
R202
2.7KĪ©
1/2W
C203
0.22UF
200V
T1
R201
150Ī©
8W
H-7LPRD0122
CD202
CD201
MD-12N1MD-12N1
ļ¼”101 ļ¼”102
M1568BS
ļ¼¶101
P3001
P1109
P1110
P1104
P1103
P1003
P1004
P1111
PULSE TANS
P2103
DUMMY
ļ¼”103
(W001)
(W003)
P1002
1.+12V
2.GN D
3.FAN_ERR2
J1114
IL-G-3P
1.+12V
2.C2
J1105
IL-G-2P
P1105
MODULATOR UNIT NMA-550
SCANNER UNIT INTERCONNECTION
CAX-15
(W106)
(W103)
(W104)
(W105)
ZCRD1255※
ZCRD1257※
P1505
J1
IL-G-6P
J2
IL- G -4P
ZCRD1256※
ļ¼”301
NJS6930
ZCRD1252※
ZCRD1258※
ZCRD1251※
ZCRD1253※
(W004)
(W207)
ZCRD1448※
ZCRD1254※
1.φZ
2.φZE
3.φ A
4.φB
5.+12V
6.GND
J13
IL-6P
50/60kW
RED
WHT
DISPLAY UNIT
P2101
P2102
8.GND
1.M+
2.M-
158651 4-2
NJC4002
9.NC
10.NC
B02P-NV(LF)(SN)
S. G.
S.G.S.G.
8.GND
1
2
3
4
5
6
7
8
9
10
1
2
3
4
5
6
7
8
9
10
WHT
BLK
P1118
BLU
WHT
BLK
BLU
P1301
J1301
(W006)
1
2
3
4
1
2
3
4
5
6
5
6
7
8
7
8
SE
YE L
BLK
BLU
WHT
RED
SHIELD
B102
ENCODER CHT-71A
P13
(W017)
FAN
RED
BLU
YEL
B201
B202
FAN
RED
BLU
YEL
(W009)
(W010)
P1113 P1114
RED
WHT
ZCRD1447※
(W206)
シロ
ļ½øļ¾›
アオ
12
BLK.T
21 3
3
BLK.T
(W107)
ZCRD1259※
J1303
P1303
P1302
J1302
(W201)
ZCRD1260※
1.PTI
2.PT E
3.LVR
4.PMS
5.GN D
6.TXI
7.T X E
8.NC
IL-8P
1.PTI
2.PTE
1.LVR
2.PMS
3.E
3.TXI
4.TXE
J82
J81
PM
P81
P82
WHT
BLK
BLU
RED
BLK
WHT
BRN
NJU-85
ZCRD1280※
(W018)
ZCRD1277※
S.G.
S101
S-32
2
1
7
5
4
8
CBD-1779
IL-3P-S3EN2
J1505
1.HM C NT
2.+15V
3.E
J1504
1.MS 1
2.NC
3.MS2
アカ太
P1504
B3 P-V H
P1501
J1501
1.MPS
2.MCT
IL- G-3 P- S3 T2 -SA
(W302)
ZCRD1449※
(W307)
J1503
IL-2P-S3EN2
R1
10Ī© ,1 0W
P1503
ZCRD1450※
GRN
BRN
BLU.T
MOTOR CBP-168A / CBP-182
YE L
1.M +
2.N C
3.M -
4.N C
B4P-VH
P1502
J125
1.M CNT -
2.M CNT +
3.NC
P125
B3P-SHF-1AA
P1502
B101
MOTOR CONTROL
POWER CIRCUIT
(W305)
(W301)
BLK.T
DIS PL AY UNIT
MOTOR
BRAKE CIRCUIT
CFA-257
NJC3901M NJC3901M
H-7BFRD0002
H-7BFRD0002
NJC9952
ļ¼”104
SAFETY SWITCH
CSD-653
1.2A
2.1A
1.2A
2.1A
J4
350209-1
J5
350209-1
3.MBK
ZCRD1451※
(W208)
ZCRD1494※
(W308
※NKE-2254HS
惻MOTOR CBP-182
UVUTH
UVUTH
TH101
WHT.T
TR101
(100W)
シロ太
HEATER CONTROL
PART
CHG-216
(OPTION)
TB105
S.G.
CFR-229
MAG F IL TE R
CIRCUIT
220pFƗ5
ZCRD1508※
(W401)
H-7ZCRD####*:
ā€œ#ā€ means specification document No .
ā€œ*ā€ means revision of the specfication document.

Table of Contents

Other manuals for JRC JMA-9123-7XA

Related product manuals