EasyManua.ls Logo

KitchenAid 4317266 - Page 14

KitchenAid 4317266
32 pages
Print Icon
To Next Page IconTo Next Page
To Next Page IconTo Next Page
To Previous Page IconTo Previous Page
To Previous Page IconTo Previous Page
Loading...
14
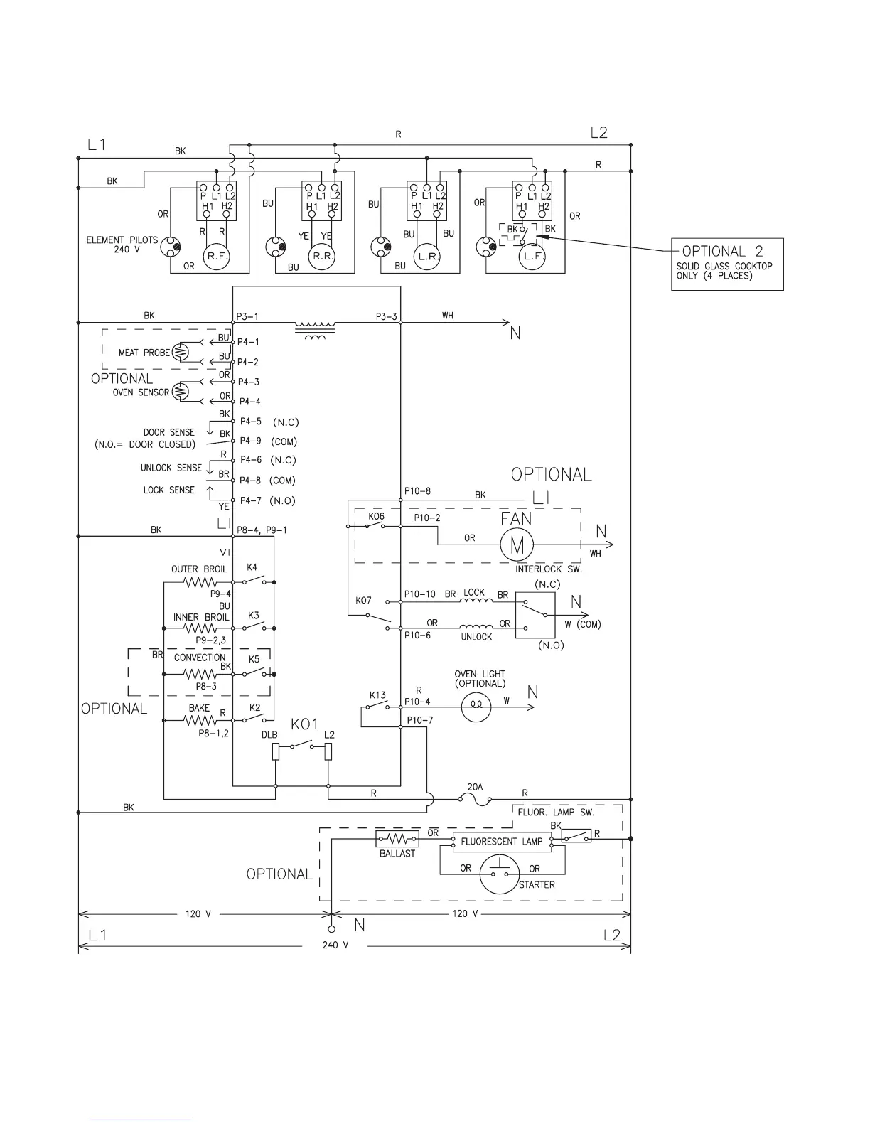
WIRING DIAGRAMS
Tech Sheet #9752381 & #9750877

Related product manuals