EasyManua.ls Logo

KitchenAid KBLC36FMS01 - Custom Panel Routing and Dimensions; Top Grille Panel Routing Requirements; Overlay Series Custom Panels Overview; Door Panel Routing Requirements

KitchenAid KBLC36FMS01
68 pages
Print Icon
To Next Page IconTo Next Page
To Next Page IconTo Next Page
To Previous Page IconTo Previous Page
To Previous Page IconTo Previous Page
Loading...
Top Grille Panel - Routing Requirements
Top and bottom edges of the top panel should be edge routed 1/2"
(1.3 cm) and %" (9.5 mm), respectively. Both ends should be
edge-routed %" (2.2 cm) as shown.
Topi Top1'max'6 mm'
Grille ( Grille _
(2.2 crn) (2.2 cm)
NOTE: When creating a panel with face detail, the offsets will be
hidden and must be accounted for in order to center the detail in
the top grille.
1/4"
(6.35 mrn) max.
1/2" l Top
(1.3 cm)
rnin,
Center face
detail between _
offsets
%" ]
(9,5 rnrn)
min, Bottom
Door Panel - Routing Requirements
If an extended handle kit is used, then routing the handle side of
the door and drawer panels is not required. See "Classic,
Architect ®, and Overlay Series Factory Panels and Kits" for more
information on ordering extended handles.
If the standard handle is used, rout the entire handle side 31/4''
(8.25 cm) to allow for finger clearance• Then rout the other side 1"
(2.54 cm).
Standard Handle - Top View
I
31/4"
(8.25 cm)
mln.
1/4"
(6.35 mm) max. I
l
I
2" (5 cm)
rain.
Door
Panel
Hinge Side
__]
Door [_H_
Panel
1 u
(2.54 cm)
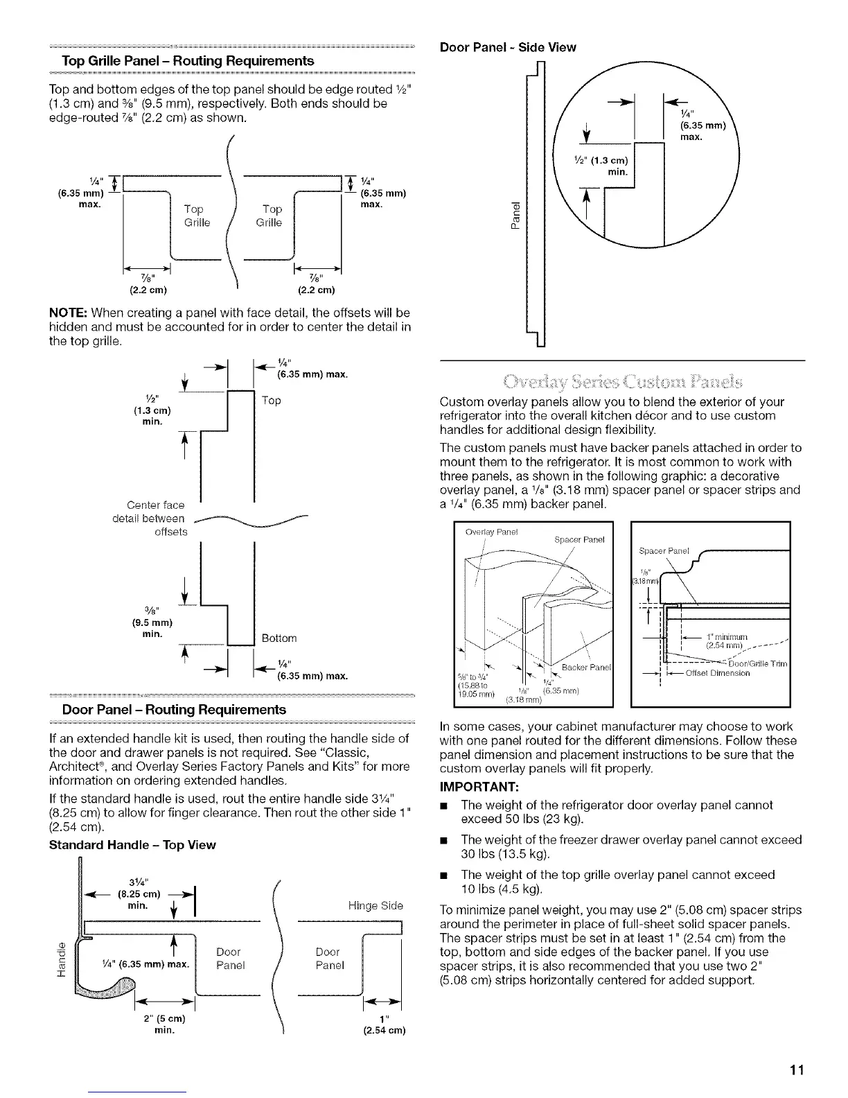
Door Panel - Side View
C
0-
Custom overlay panels allow you to blend the exterior of your
refrigerator into the overall kitchen decor and to use custom
handles for additional design flexibility.
The custom panels must have backer panels attached in order to
mount them to the refrigerator. It is most common to work with
three panels, as shown in the following graphic: a decorative
overlay panel, a 1/8"(3.18 mm) spacer panel or spacer strips and
a 1/4"(6.35 mm) backer panel.
I Overlay Panel
Spacer Panel
i_'_ Backer Panel
g/8,,1os/4,, b_.
(15.88to V4"
19.05 ram) l/s" (6,35 ram)
(3.18 mm)
1
Spacer Panel
1/8"
-f-,
I i
I I
_._ 1" mm_mum
_ (2.54 Inm)_ ......
i _<D_r/Grilb Trim
_J _ Offset Dimerlsk)n
In some cases, your cabinet manufacturer may choose to work
with one panel routed for the different dimensions. Follow these
panel dimension and placement instructions to be sure that the
custom overlay panels will fit properly.
IMPORTANT:
The weight of the refrigerator door overlay panel cannot
exceed 50 Ibs (23 kg).
The weight of the freezer drawer overlay panel cannot exceed
30 Ibs (13.5 kg).
The weight of the top grille overlay panel cannot exceed
10 Ibs (4.5 kg).
To minimize panel weight, you may use 2" (5.08 cm) spacer strips
around the perimeter in place of full-sheet solid spacer panels.
The spacer strips must be set in at least 1" (2.54 cm) from the
top, bottom and side edges of the backer panel. If you use
spacer strips, it is also recommended that you use two 2"
(5.08 cm) strips horizontally centered for added support.
11

Related product manuals