EasyManua.ls Logo

KitchenAid KBLO36FTX08 - Page 35

KitchenAid KBLO36FTX08
80 pages
Print Icon
To Next Page IconTo Next Page
To Next Page IconTo Next Page
To Previous Page IconTo Previous Page
To Previous Page IconTo Previous Page
Loading...
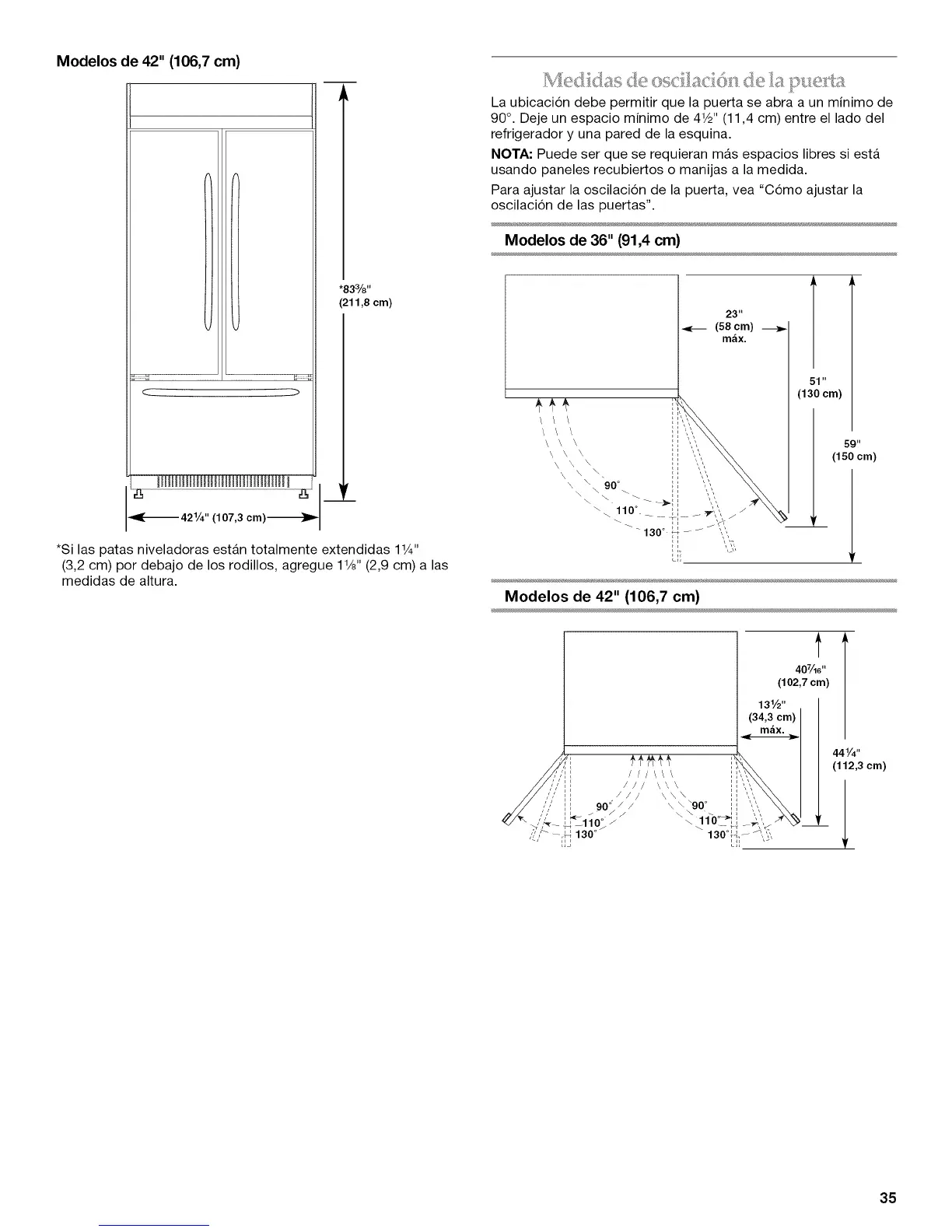
Modelosde42"(106,7cm)
*83%"
(211,8 cm)
c )
(107,3 cm)_ --421/4"
*Si las patas niveladoras estan totalmente extendidas 11¼"
(3,2 cm) por debajo de los rodillos, agregue 1V8" (2,9 cm) alas
medidas de altura.
La ubicacion debe permitir que la puerta se abra a un minimo de
90°. Deje un espacio minimo de 4W' (11,4 cm) entre el lado del
refrigerador y una pared de la esquina.
NOTA: Puede ser que se requieran mas espacios libres si esta
usando paneles recubiertos o manijas a la medida.
Para ajustar la oscilacion de la puerta, vea "Como ajustar la
oscilacion de las puertas".
Modelos de 36" (91,4 cm)
23"
(58 cm) ---_
max.
(1: I'cm)
59"
(150cm)
Modelos de 42" (106,7 cm)
407/_6''
(102,7 cm)
1;1/2,,
(34, _cm)
//// i _// \\\ ii ',', ×
// // I 90 °" / / \ \ "90 ° " "
-.//,_-__2:110:I" \ 110°-_ ___A\
'?/'__,,,130" 130°44. -- ", '_'.
441/4,,
(112,3 cm)
35

Related product manuals