EasyManua.ls Logo

KitchenAid KBLO36FTX08 - Page 41

KitchenAid KBLO36FTX08
80 pages
Print Icon
To Next Page IconTo Next Page
To Next Page IconTo Next Page
To Previous Page IconTo Previous Page
To Previous Page IconTo Previous Page
Loading...
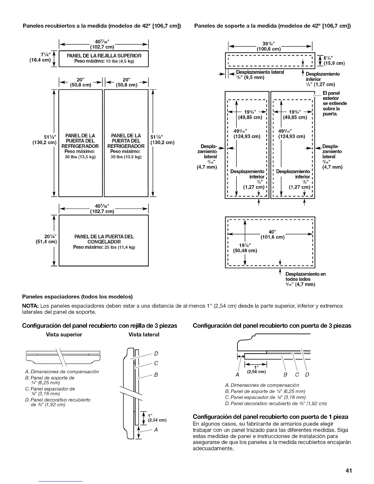
Paneles recubiertos a la medida (modelos de 42" [106,7 cm]) Paneles de soporte a la medida (modelos de 42" [106,7 cm])
407"46" < 39%"(102,7 cm) _-
(100,6 cm)
(18,4 cm)L l Peso m_ximo: 10 Ibs(4,5 kg) i,
Desplazamiento lateral
_ 3_8
(9,5 mm)
_<- (502-0"m)8c_ <_- 20"
(50,8 cm)
T
511/4''
(130,2 cm)
PANEL DE LA
PUERTA DEL
REFRIGERADOR
Peso m_ximo:
30 Ibs (13,5 kg)
PANEL DE LA
PUERTA DEL
REFRIGERADOR
Peso m_ximo:
30 Ibs(13,5 kg)
[
511/4''
(130,2 cm)
T
201/4''
(51,4 cm)
407"46''
(102,7 cm)
PANEL DE LA PUERTA DEL
CONGELADOR
Peso m_ximo: 25 Ibs(11,4 kg)
Despla- __
zamiento
lateral
3/1611
(4,7 ram)
L 19%"
"<- I(49,85 cm)
493/1_''
(124,93 cm)
-.<--
Desplazamiento
inferior
I 1/2"
(1,27 cm)
...... f-- J
+
,IT6v,"
÷ j±(15,9cm)
_ Desplazamiento
inferior
1/2"(1,27 cm)
El panel
exterior
i j, se extiende
I
L
sobre la
I_. 19%" --_"
I( 4 puert&
I 9,85 cm)
|
I
i 493/16''
(124,93 cm)
__ <_ Despla-
zamiento
lateral
3/16 II
(4,7 mm)
_ I_splazamiento
inferior
I
1/211
, (1,27 cm)
| __f J
L .....
m
I
|
' I
I
i 197/8"
(50,48 cm)
|
40"
(101,6 cm)
_t
Desplazamiento en
todos lados
3/16"(4,7 mm)
Paneles espaciadores (todos los modelos)
NOTA: Los paneles espaciadores deben estar a una distancia de al menos 1" (2,54 cm) desde la parte superior, inferior y extremos
laterales del panel de soporte.
Configuraci6n del panel recubierto con rejilla de 3 piezas
Vistasuperior Vista lateral
I
S
A. Dimensiones de compensaci6n
B. Panel de soporte de
_" (6,25 mm)
C. Panel espaciador de
_" (3,18 mm)
D. Panel decorativo recubierto
de _" (1,92 cm)
B
1 ii
(2,54 cm)
Configuraci6n del panel recubierto con puerta de 3 piezas
f
J
B C D
A. Dimensiones de compensaci6n
B. Panel de soporte de _" (6,25 mm)
C. Panel espaciador de _" (3,18 mm)
D. Panel deeorativo reeubierto de _" (1,92 era)
Configuraci6n del panel recubierto con puerta de I pieza
En algunos casos, su fabricante de armarios puede elegir
trabajar con un panel trazado para las diferentes medidas. Siga
estas medidas de panel e instrucciones de instalacion para
asegurarse de que los paneles a la medida recubiertos encajar_n
adecuadamente.
41

Related product manuals