EasyManua.ls Logo

KitchenAid KBLS36FTX02 - Page 42

KitchenAid KBLS36FTX02
84 pages
Print Icon
To Next Page IconTo Next Page
To Next Page IconTo Next Page
To Previous Page IconTo Previous Page
To Previous Page IconTo Previous Page
Loading...
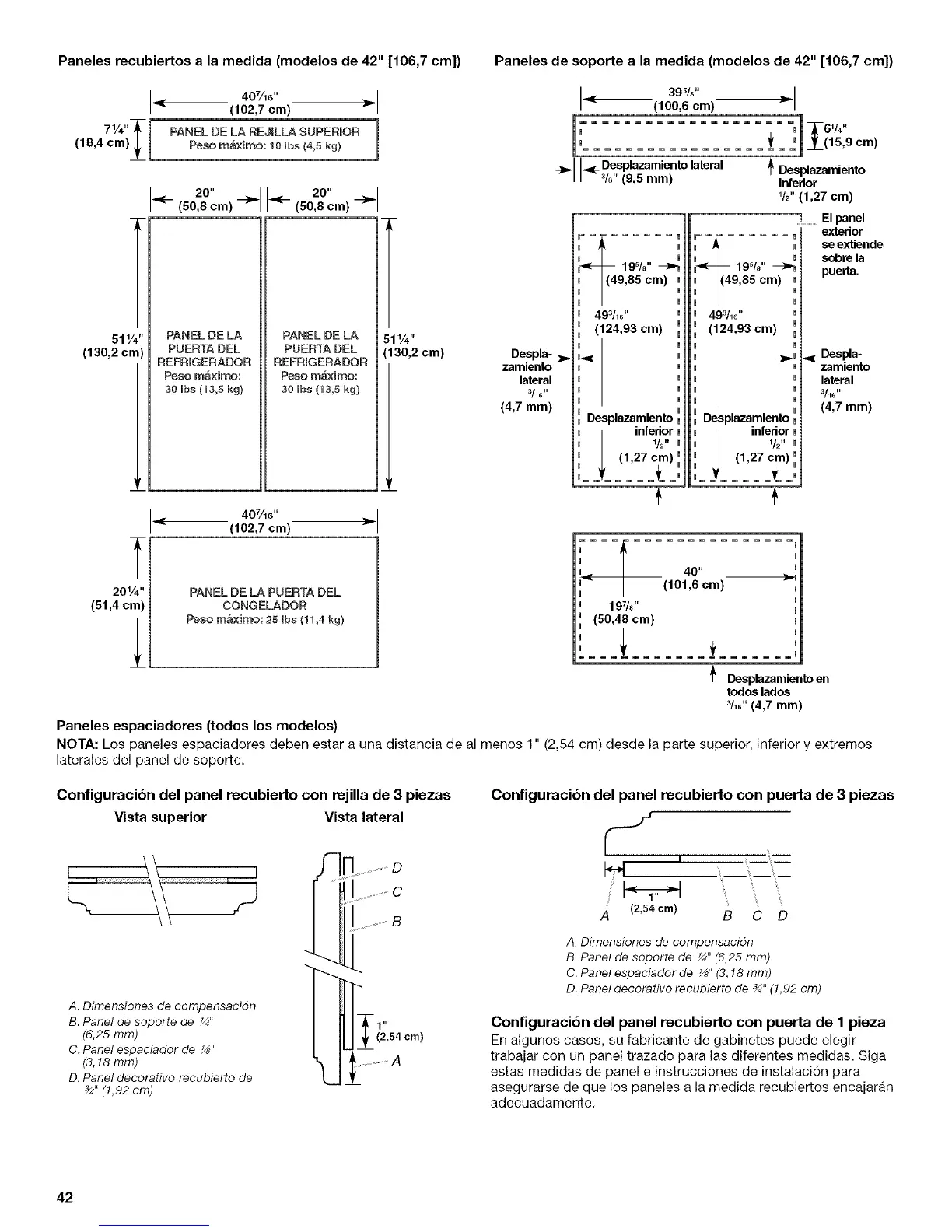
Paneles recubiertos a la medida (modelos de 42" [106,7 cm]) Paneles de soporte a la medida (modelos de 42" [106,7 cm])
407/16" > II
I< (102,7 cm) >1 I_--- 395/8"
(100,8 cm)
Peso m_ximo: 10 ,bs (4,5 kg) m
(18,4em) __I ',o * 1±(15,9om)
__ __ Desplazamiento lateral _ Desplazamiento
I I 3/8"(9,5 mm) inferior
20" 20" V2"(1,27em)
(50,8 cm) II (50,8 cm)
511/4''
(130,2 cm)
PANEL DE LA
PUERTA DEL
REFRmGERADOR
Peso m_×imo:
30 Ibs (13,5 kg)
PANEL DE LA
PUERTA DEL
REFRIGERADOR
Peso m_ximo:
30 Ubs(13,5kg)
T
201/4''
(51,4 cm)
407/16 ''
(102,7 cm)
PANEL DE LA PUERTA DEL
CONGELADOR
Peso m_×imo: 25 Ibs(11,4 kg)
Paneles espaciadores (todos los modelos)
T
51%"
(130,2 cm)
Despla- __
zamiento
lateral
3/16"
(4,7 ram)
493/_6''
(124,93 cm)
Desplazamiento
inferior
1/2== |
(1,27 cm) ll
19%" _>
(49,85 cm)
-_,_|
Desplazamiento
inferior
1/2.
(1,27 cm)
......................Elpanel
exterior
se extiende
sobre la
puerta.
__ Despla-
zamiento
lateral
3/16"
(4,7 mm)
_mmm l
I m
m
_ 40" >;
ll_ I (101,6 cm)
197/8"
(50,48 cm)
Desplazamiento en
todos lados
3/_6"(4,7 mm)
NOTA: Los paneles espaciadores deben estar a una distancia de al menos 1" (2,54 cm) desde la parte superior, inferior y extremos
laterales del panel de soporte.
Configuracibn del panel recubierto con rejilla de 3 piezas
Vista superior Vista lateral
A. Dimensiones de compensacidn
B. Panel de soporte de ¼"
(6,25ram)
C. Panel espaeiador de _"
(3,18 mm)
D. Panel decorativo reeubierto de
_" (!,92 cm)
1"
(2,54 cm)
Configuracibn del panel recubierto con puerta de 3 piezas
./
S il--
A (2,54 cm) B C D
A. Dimensiones de compensacidn
B. Panel de soporte de _" (6,25 mm)
C.Panel espaciador de _" (3,18 mm)
D. Panel decorative recubierto de ¾" (1,92 cm)
Configuracibn del panel recubierto con puerta de I pieza
En algunos casos, su fabricante de gabinetes puede elegir
trabajar con un panel trazado para las diferentes medidas. Siga
estas medidas de panel e instrucciones de instalaci6n para
asegurarse de que los paneles a la medida recubiertos encajaran
adecuadamente.
42

Related product manuals