EasyManua.ls Logo

KitchenAid KGCS166GSS10 - Page 8

KitchenAid KGCS166GSS10
16 pages
Print Icon
To Next Page IconTo Next Page
To Next Page IconTo Next Page
To Previous Page IconTo Previous Page
To Previous Page IconTo Previous Page
Loading...
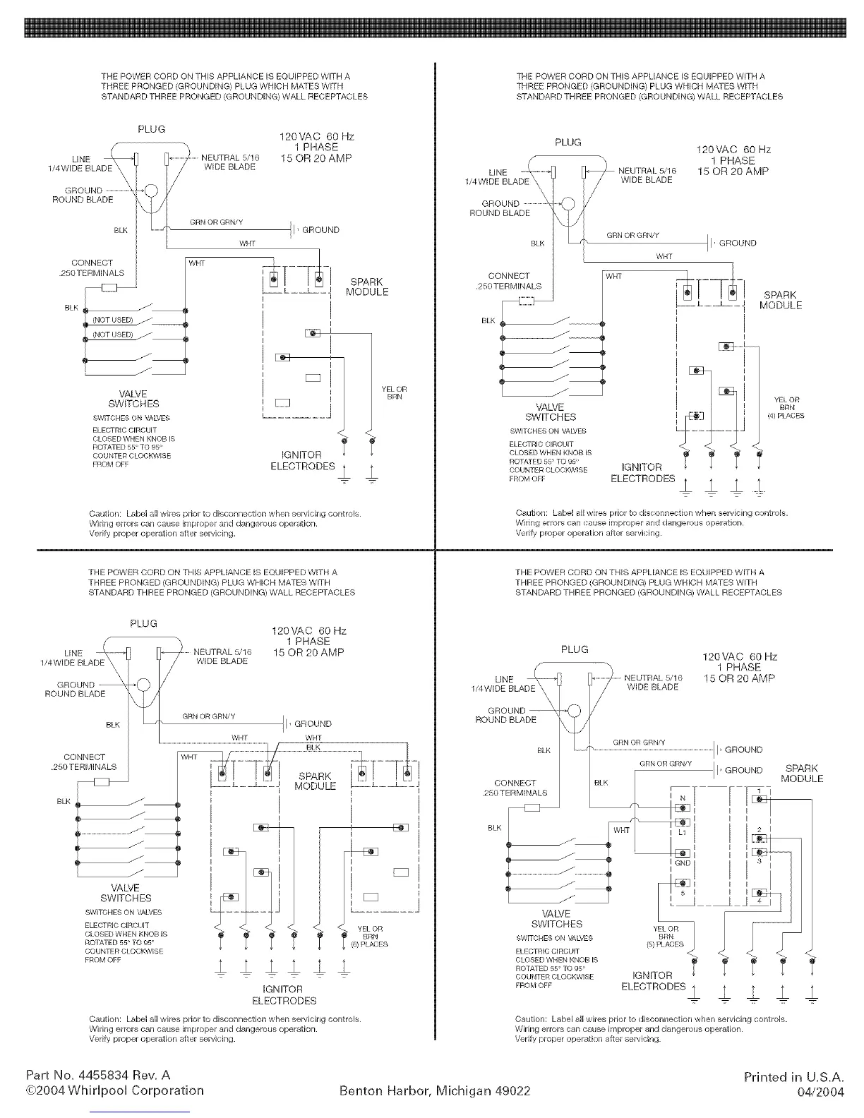
THE POWER CORD ON THIS APPLIANCE IS EQUIPPED WITH A
THREE PRONGED (GROUNDING) PLUG WHICH MATES WITH
STANDARD THREE PRONGED (GROUNDING) WALL RECEPTACLES
LINE
1/4WIDE BLADE
GROUND
ROUND BLADE
PLUG
BLK
VALVE
SW_TCHES
SWITCHESON VALVES
ELECTRICCIRCUIT
CLOSEDWRENKNOB IS
ROTATED55 TO 95
COUNTERCLOCKWISE
FROM OFF
GROUND--
ROUND BLADE
NEUTRAL 5/16
WIDE BLADE
120VAC 60 Hz
1 PHASE
15 OR 20 AMP
GRN OR GRN/Y Ill, GROUND
ELECTRODES
THE POWER CORD ON THIS APPLIANCE IS EQUIPPED WITH A
THREE PRONGED (GROUNDING) PLUG WHICH MATES WITH
STANDARD THREE PRONGED (GROUNDING) WALL RECEPTACLES
PLUG
LINE
1/4WIDE BLADE WIDE BLADE
SPARK
MODULE
BLK
Caution: Label all wires prior to disconnection when servicing controls
Wiring errors can cause _mproper and dangerous operation.
Verity proper operation after servicing.
THE POWER CORD ON THIS APPLIANCE IS EQUIPPED WITH A
THREE PRONGED (GROUNDING) PLUG WHICH MATES WITH
STANDARD THREE PRONGED (GROUNDING) WALL RECEPTACLES
YEL OR
BRN
ROUND BLADE
CONNECT
.250TERMINALS
VALVE
120VAC 60 Hz
1 PHASE
15 OR 20 AMP
BLK
PLUG
120VAC 60 Hz
1 PHASE
.........NEIU]-RAL5/16WDEBLADE 15 OR 20 AMP
I' GROUND
....................WRT
wm _,/l_7_r_...............................................................................SPARK_gK...................................................
--L--_i" MODULE p_L__-__
I
i
_-- _ [_
i
_GNITOR
ELECTRODES
CONNECT
250TERMINALS
BLK
VALVE
SWITCHES
SWRCBESON VALVES
ELECTRICCIRCUIT
CLOSEDWHEN KNOB IS
ROTATED55 TO 95
COUNTER CLOCKWISE
FROM OFF
, YEL OR
BRN
, (6) PLACES
Caution: Label all wires prior to disconnection when servicing controls
Wiring errors can cause _mproper and dangerous operation.
Verity proper operation after servicing.
SWITCHES
SWN'CBESON VALVES
ELECTRICBIRCUIT
CLOSEDWRENKNOB IS
ROTATED55 TO 95_
COUNTERCLOCKWISE
FROMOFF
QRN OR GRN/Y I,GROUND
WHT
BLK
ROUND BLADE
WHT
IGNITOR
ELECTRODES! .............
Caution: Label all wires prior to disconnection when servicing controls.
Wiring errors can cause improper and dange_)us operation.
Verify proper operatiorl after servicing.
THE POWER CORD ON THIS APPLIANCE IS EQUIPPED WITH A
THREE PRONGED (GROUNDING) PLUG WHICH MATES WITH
STANDARD THREE PRONGED (GROUNDING) WALL RECEPTACLES
PLUG
120VAC 60 Hz
1 PHASE
BLK
GRN OR QRN/Y I, GROUND
COUNTERCLOCKWISE
FROM OFF ELECTRODES _
Caution: Label all wires prior to disconnection when servicing controls.
WMng errors can cause improper and dangerous operation
Verify proper operation after servicirlg
SPARK
MODULE
YEL OR
BRN
(4) PLACES
SPARK
L
Part No. 4455834 Rev. A Printed in U.S.A.
(cb2O04Whirlpool Corporation Benton Harbor, Michigan 49022 04/2004

Related product manuals