EasyManua.ls Logo

KitchenAid W10379133A - Classic Series Custom Panels

KitchenAid W10379133A
80 pages
Print Icon
To Next Page IconTo Next Page
To Next Page IconTo Next Page
To Previous Page IconTo Previous Page
To Previous Page IconTo Previous Page
Loading...
16
Classic Series Custom Panels
If you plan to install custom wood panels, you will need to create
the panels yourself or consult a qualified cabinetmaker or
carpenter. See dimension drawings for panel specifications.
IMPORTANT: Panels weighing more than recommended may
cause damage to your refrigerator.
NOTE: Dimensions shown have a (±)¹⁄₁₆" (1.5 mm) tolerance.
Panels that are more than ¹⁄₄" (6.35 mm) thick must be routed. If
panels are less than ¹⁄₄" (6.35 mm) thick, install a filler panel
between the doors and decorative panels.
Top Grille Panel
The top grille panel should not weigh more than 10 lbs (4.5 kg).
NOTE: The dashed lines in the illustration represent the location
and offsets of raised wood panel.
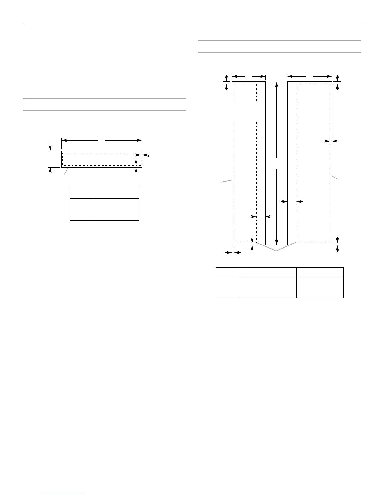
Door Panels for Non-dispenser Models
The freezer panel should not weigh more than 40 lbs (18.1 kg).
The refrigerator panel should not weigh more than 50 lbs (23 kg).
NOTES:
If the standard handle is used, the handle side offset of
both panels should be 3¹⁄₄" (8.25 cm) to all for finger
clearance.
If an extended handle is used, the handle side offset of
both panels should be ⁷⁄₁₆" (1.1 cm). Make sure the
refrigerator location allows the doors with extended
handles to open to 90 degrees. See “Door Swing
Dimensions.
The dashed lines in the illustration represent the location
and offsets of raised wood panel.
Model A
36
42
48
34¹⁄₄" (87.0 cm)
40¹⁄₄" (102.2 cm)
46¹⁄₄" (117.5 cm)
A
7"
(17.78 cm)
Top & Bottom Offsets
¹¹⁄₁₆" (1.75 cm)
Side Offsets
⁷⁄₁₆" (1.11 cm)
¹⁄₄" thick
plywood
Model A B
36
42
48
14¹⁄" (36.2 cm)
16³⁄" (42.6 cm)
19¹⁄" (48.9 cm)
19¹⁄" (48.9 cm)
22³⁄" (57.8 cm)
26¹⁄" (66.7 cm)
Freezer
Door
(Non-Dispenser)
B
A
Refrigerator
Door
70⁷⁄₁₆"
(178.9 cm)
¹⁄₂"
(1.27 cm)
¹⁄₂"
(1.27 cm)
¹⁄₂"
(1.27 cm)
¹⁄₂"
(1.27 cm)
⁷⁄₁₆"
(1.1 cm)
⁷⁄₁₆"
(1.1 cm)
¹⁄₄" thick
plywood
3¹⁄₄"
(8.3 cm)
Location and offsets
of raised wood panel
3¹⁄₄"
(8.3 cm)
¹⁄₄" thick
plywood

Table of Contents

Related product manuals