EasyManua.ls Logo

KitchenAid W10379133A - Medidas de Oscilación de las Puertas

KitchenAid W10379133A
80 pages
Print Icon
To Next Page IconTo Next Page
To Next Page IconTo Next Page
To Previous Page IconTo Previous Page
To Previous Page IconTo Previous Page
Loading...
35
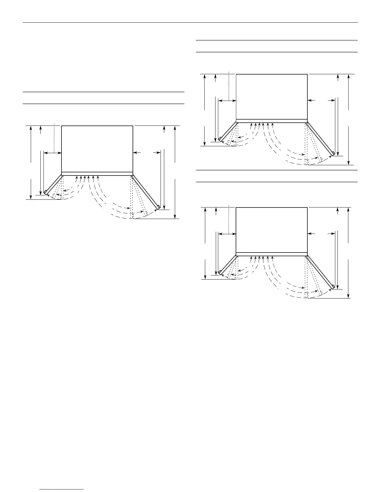
Medidas de oscilación de las puertas
La ubicación debe permitir que las puertas se abran a un mínimo
de 90°. Deje un espacio mínimo de 4¹⁄₂" (11,4 cm) entre el lado del
refrigerador y una pared de la esquina.
NOTA: Es posible que en un modelo Classic se necesite más
espacio si va a utilizar paneles recubiertos, agarraderas a la
medida o agarraderas extendidas.
Para ajustar la oscilación de las puertas, vea “Cómo ajustar las
puertas”.
Modelos de 36" (91,4 cm)
Modelos de 42" (106,7 cm)
Modelos de 48" (121,9 cm)
130˚
130˚
90˚
90˚
110˚
110˚
44³⁄₈"
(112,7 cm
)
39"
(99,1 cm)
14
³⁄₈"
(36,5 cm)
10
⁷⁄₈"
(27,6 cm)
35
¹⁄₂"
(90,2 cm)
38
⁷⁄₈"
(
98,7 cm)
130˚
130˚
90˚
90˚
110˚
110˚
47⁷⁄₈"
(121,6 cm
)
41¹⁄₂"
(105,4 cm)
16
⁷⁄₈"
(42,9 cm)
12
⁵⁄₈"
(32,1 cm)
37
¹⁄₄"
(94,6 cm)
41
³⁄₈"
(105,1 cm)
130˚
130˚
90˚
90˚
110˚
110˚
51³⁄₈"
(130,5 cm
)
44"
(111,8 cm)
19
¹⁄₄"
(48,9 cm)
14
³⁄₈"
(36,5 cm)
39"
(99,1 cm)
43
⁷⁄₈"
(
111,4 cm)

Table of Contents

Related product manuals