EasyManua.ls Logo

KitchenAid W10379133A - Panneaux Personnalisés et Poignées de la Série Overlay

KitchenAid W10379133A
80 pages
Print Icon
To Next Page IconTo Next Page
To Next Page IconTo Next Page
To Previous Page IconTo Previous Page
To Previous Page IconTo Previous Page
Loading...
64
Panneaux personnalisés et poignées de la série Overlay
Les panneaux de recouvrement personnalisés permettent
d'assortir l'extérieur du réfrigérateur à la décoration d'ensemble
de la cuisine; par ailleurs les poignées personnalisées donnent
une flexibilité supplémentaire en termes d’esthétique.
Pour le montage sur le réfrigérateur, un panneau d'appui doit être
fixé sur chaque panneau personnalisé. On utilise fréquemment
trois panneaux (voir l'illustration qui suit): Un panneau décoratif de
recouvrement, des lattes d'espacement ou un panneau
d'espacement de ¹/" (3,18 mm) et un panneau d'appui de ¹/"
(6,35 mm).
Dans certains cas, le fabricant des placards peut choisir de
travailler avec un unique panneau, découpé aux dimensions
appropriées. Pour un bon ajustement des panneaux
personnalisés, respecter les dimensions indiquées et les
instructions de placement.
IMPORTANT :
Le poids du panneau de recouvrement de la porte du
réfrigérateur ne doit pas dépasser 50 lb (23 kg).
Le poids du panneau de recouvrement de la porte du
congélateur ne doit pas dépasser 40 lb (18,1 kg).
Le poids du panneau de recouvrement de la grille supérieure
ne doit pas dépasser 10 lb (4,5 kg).
Pour minimiser le poids du panneau, on peut installer des lattes
d'espacement de largeur 2" (5,08 cm) sur le périmètre à la place
d'un panneau d'espacement massif complet. Placer les lattes
d'espacement à au moins 1" (2,54 cm) des rives (supérieure,
inférieure et latérales) du panneau d'appui. Dans le cas de
l'utilisation de lattes d'espacement, il est également préférable de
placer deux lattes horizontales de 2" (5,08 cm) centrées
horizontalement, pour optimiser le support.
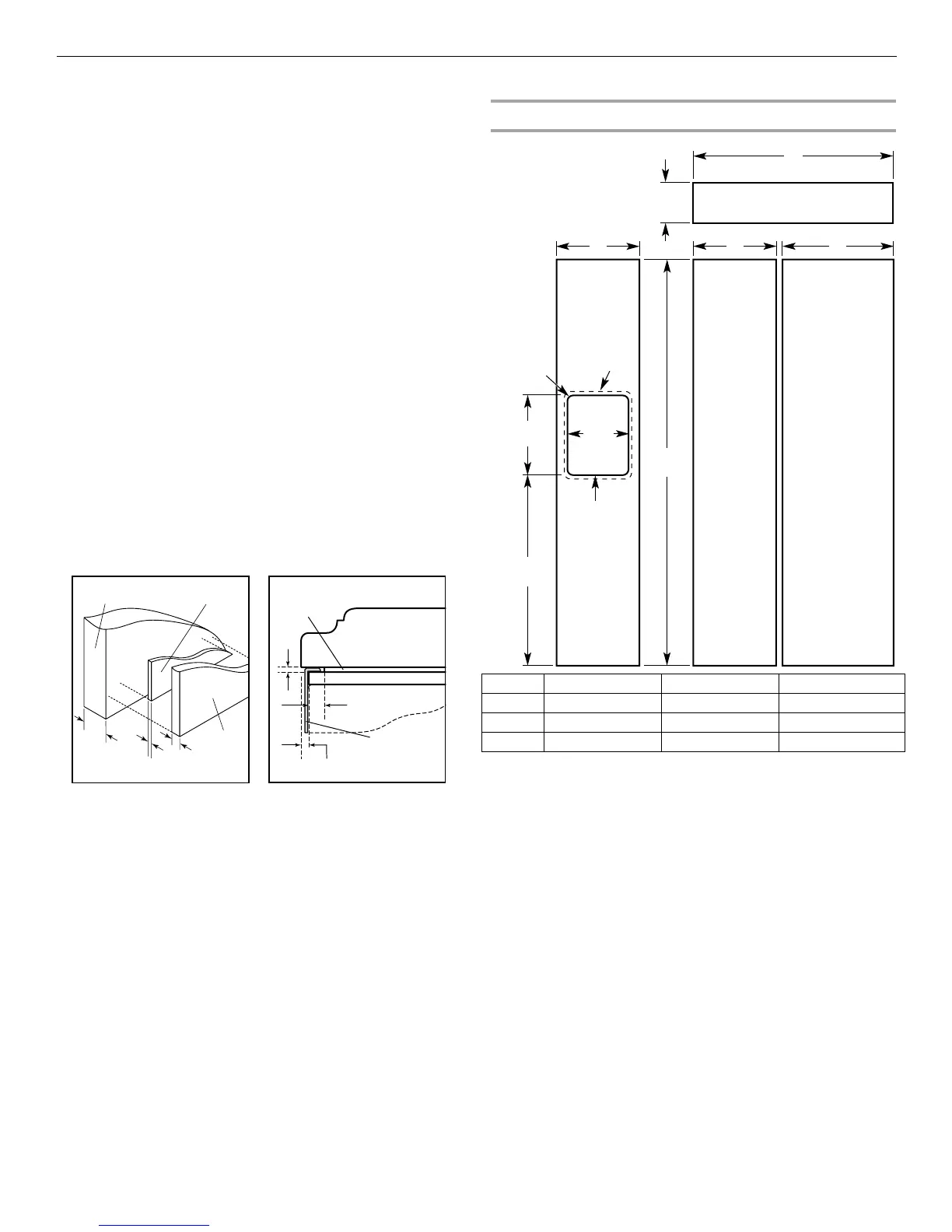
Panneau décoratifs Overlay
*Correspond à l'emplacement du panneau de recouvrement du
distributeur.
Panneau
décoratif
Panneau
d'espacement
Panneau
d'appui
5
/8" à
3
/4"
(15,88 à
19,05 mm)
1
/8"
(3,18 mm)
1
/4"
(6,35 mm)
1" minimum
(2,54 cm)
Panneau
d'espacement
Garniture de la
grille/de la porte
Dimension de décalage
1
/8"
(3,18 mm)
Panneau décoratif
Panneau d'appui
Modèle A B C
36 14³/" (37,47 cm) 19³/" (50,17 cm) 34³/" (88,27 cm)
42 17¹/" (43,82 cm) 23¹/" (59,06 cm) 40³/" (103,51 cm)
48 19³/" (50,17 cm) 26³/" (67,95 cm) 46³/" (118,75 cm)
14¹⁄₄"
(36,2 cm)
33
⁷⁄₈"
(86,0 cm)
B
AA
Panneau de
la porte du
congélateur
(sans
distributeur)
Panneau de la porte
du réfrigérateur
C
7
¹⁄₄"
(18,4 cm)
10
⁷⁄₈"
(27,6 cm)
Rayon
souhaitable
¹⁄₂"
(1,27 cm)
72
¹⁄₄"
(183,5 cm)
Panneau de
la porte du
congélateur
(avec
distributeur)
L'ouverture
prévue pour
le distributeur
est centrée
horizontale-
ment
*
Panneau de la grille

Table of Contents

Related product manuals