EasyManua.ls Logo

KnTech ZD Series - 6. Installation

KnTech ZD Series
24 pages
Print Icon
To Next Page IconTo Next Page
To Next Page IconTo Next Page
To Previous Page IconTo Previous Page
To Previous Page IconTo Previous Page
Loading...
18
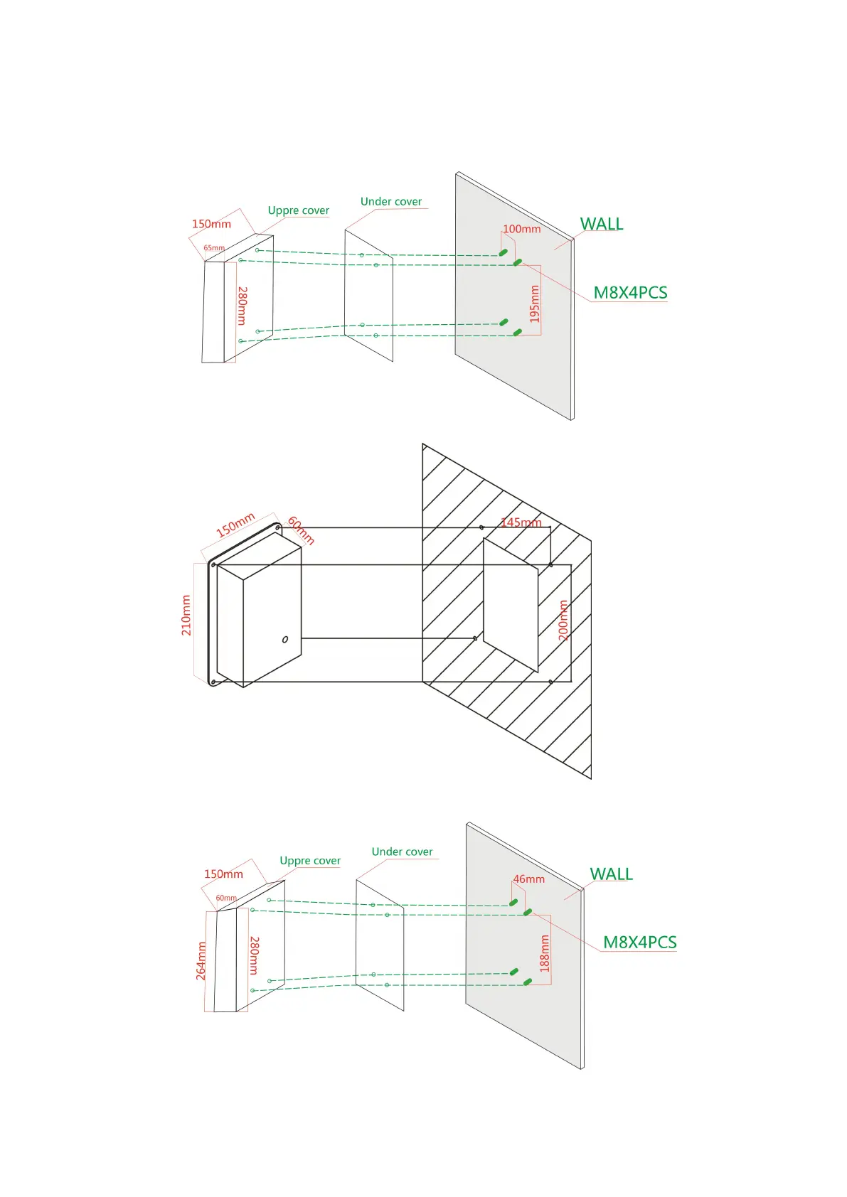
6.Installation
KNZD-05
KNZD-06
KNZD-07A/KNZD-07B

Related product manuals