EasyManua.ls Logo

Knuth R32 Basic - Page 11

Knuth R32 Basic
23 pages
Print Icon
To Next Page IconTo Next Page
To Next Page IconTo Next Page
To Previous Page IconTo Previous Page
To Previous Page IconTo Previous Page
Loading...
Machine Tools OPERATING INSTRUCTIONS
11
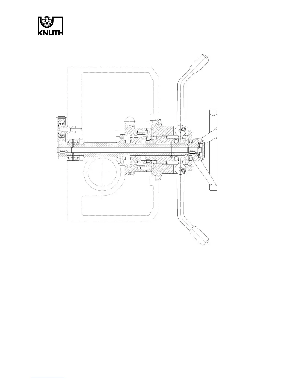
4.2 Horizontal shaft structure