EasyManua.ls Logo

Knuth R32 Basic - Page 17

Knuth R32 Basic
23 pages
Print Icon
To Next Page IconTo Next Page
To Next Page IconTo Next Page
To Previous Page IconTo Previous Page
To Previous Page IconTo Previous Page
Loading...
Machine Tools OPERATING INSTRUCTIONS
17
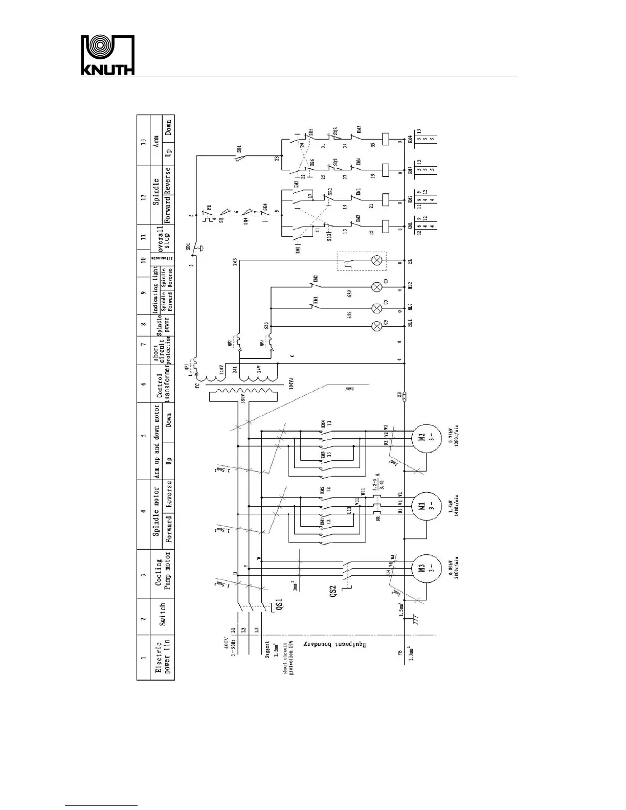
Electric principle map
Electric wiring diagram