EasyManua.ls Logo

Kohler 18RESNT - Page 15

Kohler 18RESNT
48 pages
To Next Page IconTo Next Page
To Next Page IconTo Next Page
To Previous Page IconTo Previous Page
To Previous Page IconTo Previous Page
Loading...
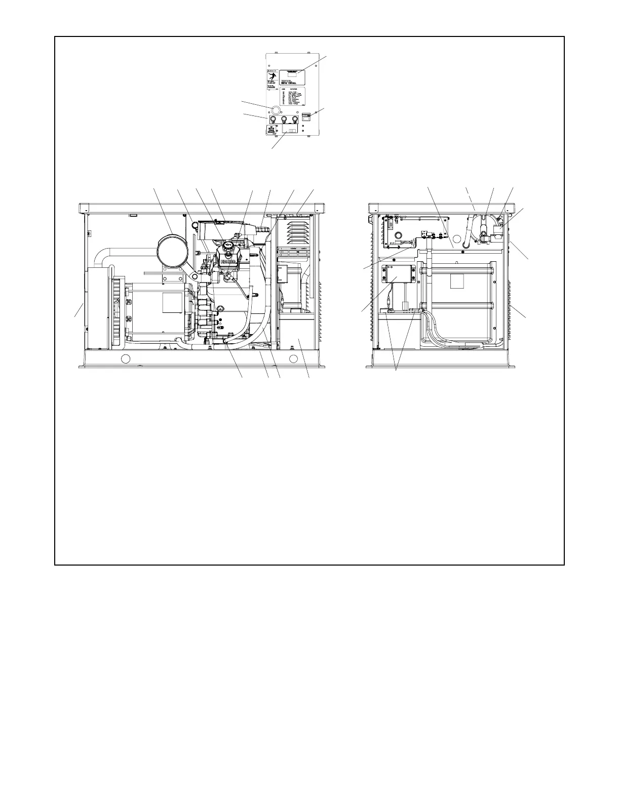
TP-6517 4/09 15Section 1 Features
12 5420
16
6
3
13
25
17
19
1415
23
ADV-7341A-B
10
26
24
9
21
18
Control detail, top view
8
11
7
12
1. Muffler
2. Oil check
3. Oil fill
4. Air cleaner
5. Spark plug locations (both sides)
6. Oil filter
7. Oil cooler location
8. DC-RET Digital Control display
9. Generator set master switch (RUN-OFF/RESET-AUTO)
10. Line circuit breaker
11. Fuses
12. RS-232 connector (for application program updates)
13. Engine starting battery location (battery purchased separately)
14. Oil drain hose
15. Nameplate location (on base)
16. Oil drain valve
17. Exhaust outlet
18. Field-connection terminal block location
19. LP fuel orifice location (inside hose fitting)
20. Gas regulator assembly
21. DSAI leads
22. Fuel solenoid valve
23. Fuel Inlet
24. Air intake
25. Battery cables
26. Battery charger
27. 120 VAC receptacles for battery charger and optional
carburetor heater
See control
detail
27
22
Figure 1-2 Generator Set Components, 17/18 kW Models

Table of Contents

Other manuals for Kohler 18RESNT

Related product manuals