EasyManua.ls Logo

Kohler 23EOZ

Kohler 23EOZ
92 pages
To Next Page IconTo Next Page
To Next Page IconTo Next Page
To Previous Page IconTo Previous Page
To Previous Page IconTo Previous Page
Loading...
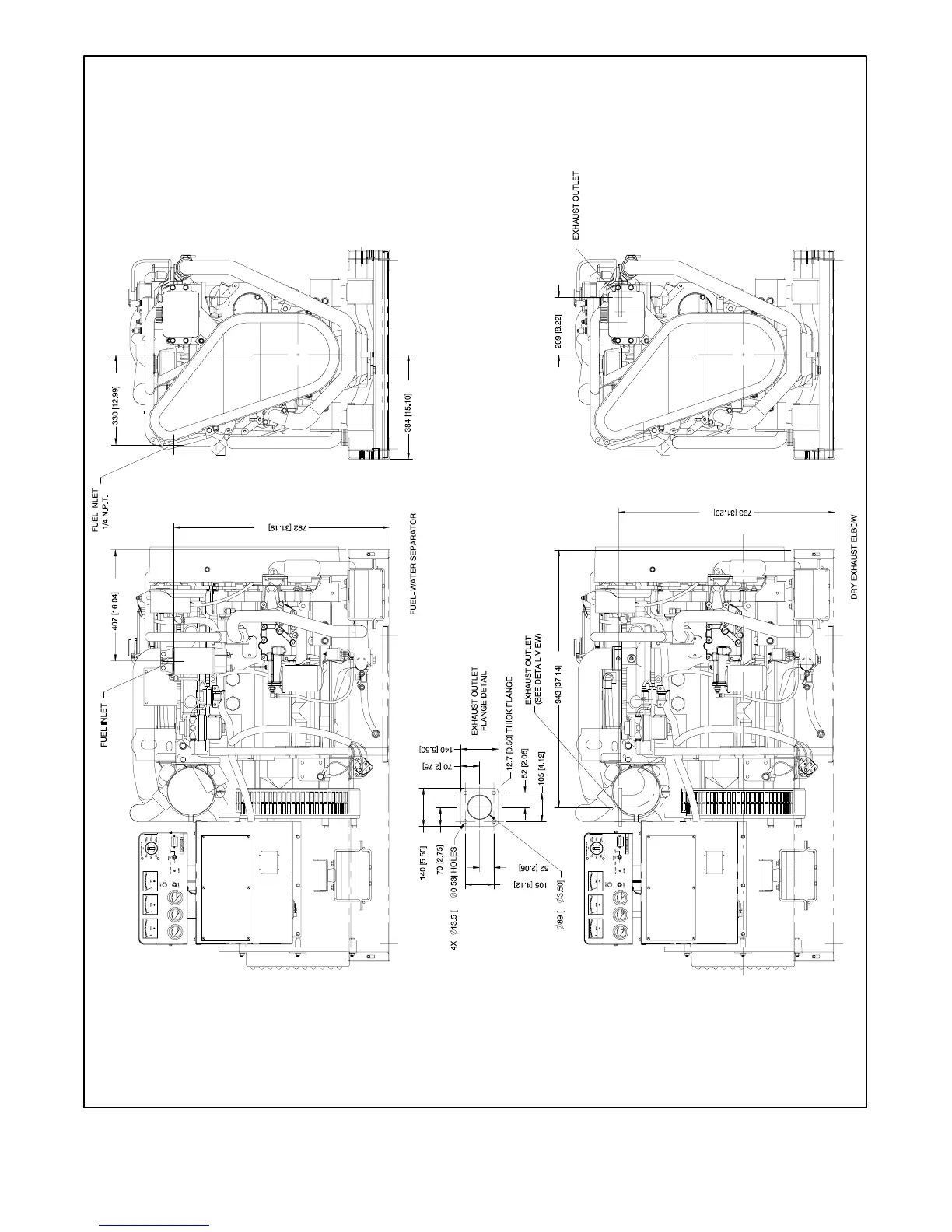
TP-6069 6/03 49Section 7 Installation Drawings
ADV-6581B-E
NOTE: Dimensions in [ ] are inch equivalents.
Figure 7-21 Dimension Drawing, 33EFOZ/40EOZ with Fuel/Water Separator and Dry Exhaust Elbow

Other manuals for Kohler 23EOZ

Related product manuals