EasyManua.ls Logo

Kohler 32EOZ

Kohler 32EOZ
80 pages
To Next Page IconTo Next Page
To Next Page IconTo Next Page
To Previous Page IconTo Previous Page
To Previous Page IconTo Previous Page
Loading...
TP-5936 7/04 43Section 9 Generator Disassembly/Reassembly
16. Support the alternator assembly and remove the 8
bolts, washers, and spacers securing the rotor
assembly to the engine flywheel. See Figure 9-6.
17. Remove the 12 bolts and washers securing the
alternator side alternator adapter to the engine side
alternator adapter and carefully remove the
alternator assembly. See Figure 9-6.
18. Remove the 8 bolts and washers securing the
armature drive discs to the rotor drive hub. See
Figure 9-6.
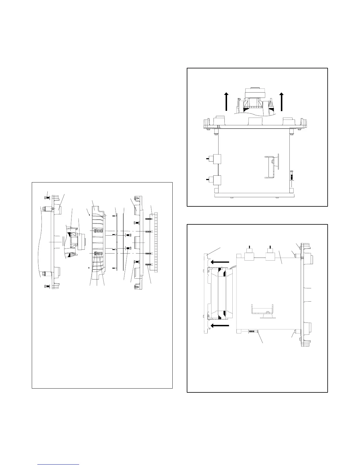
19. Place the alternator assembly on the floor and
remove the bolt, plate, and 4 washers.
20. Rotate the alternator assembly in a vertical position
with the rotor hub facing upward. See Figure 9-7.
21. Connect the hoist securely to the rotor hub with an
eyebolt or lifting plate.
22. Carefully lift the rotor out of the stator housing.
558866
1
2
6
7
8
9
11
13
5
4
10
12
14
15
16
3
1. Bolt (3/8-16 x 2.5 in.) and washer
2. Alternator side alternator adapter
3. Rotor
4. Rotor hub
5. Nut (10-32)
6. Alternator fan
7. Armature drive disc (alternator fan)
8. Armature drive disc (engine flywheel)
9. Engine side alternator adapter
10. Flywheel
11. Flywheel stud (8)
12. Bolt (M10-1.5) and washer
13. Bolt (3/8-16 x 1.25 in.) and washer (3/8 in.)
14. Spacers (16) 2 on each stud
15. Washer (8)
16. Nut (8) @39 ft. lbs.
Figure 9-6 Alternator Disassembly
23. Remove the 4 alternator end bracket bolts. See
Figure 9-8.
24. Carefully remove the end bracket with the exciter
field and wires from the stator housing. See
Figure 9-8.
558865
Figure 9-7 Alternator Position
558865
2
1
3
3
4
5
1. Alternator end bracket and exciter field
2. Stator
3. Stator mounting bolts (3/8-16 x 1.75 in.) and washers (6)
4. Alternator adapter mounting bolts (3/8-16 x 2.5 in.) and
washers (12)
5. End bracket bolts
Figure 9-8 Alternator Disassembly

Table of Contents

Other manuals for Kohler 32EOZ

Related product manuals