EasyManua.ls Logo

Kohler 35EFKOZD - Controller Features

Kohler 35EFKOZD
84 pages
To Next Page IconTo Next Page
To Next Page IconTo Next Page
To Previous Page IconTo Previous Page
To Previous Page IconTo Previous Page
Loading...
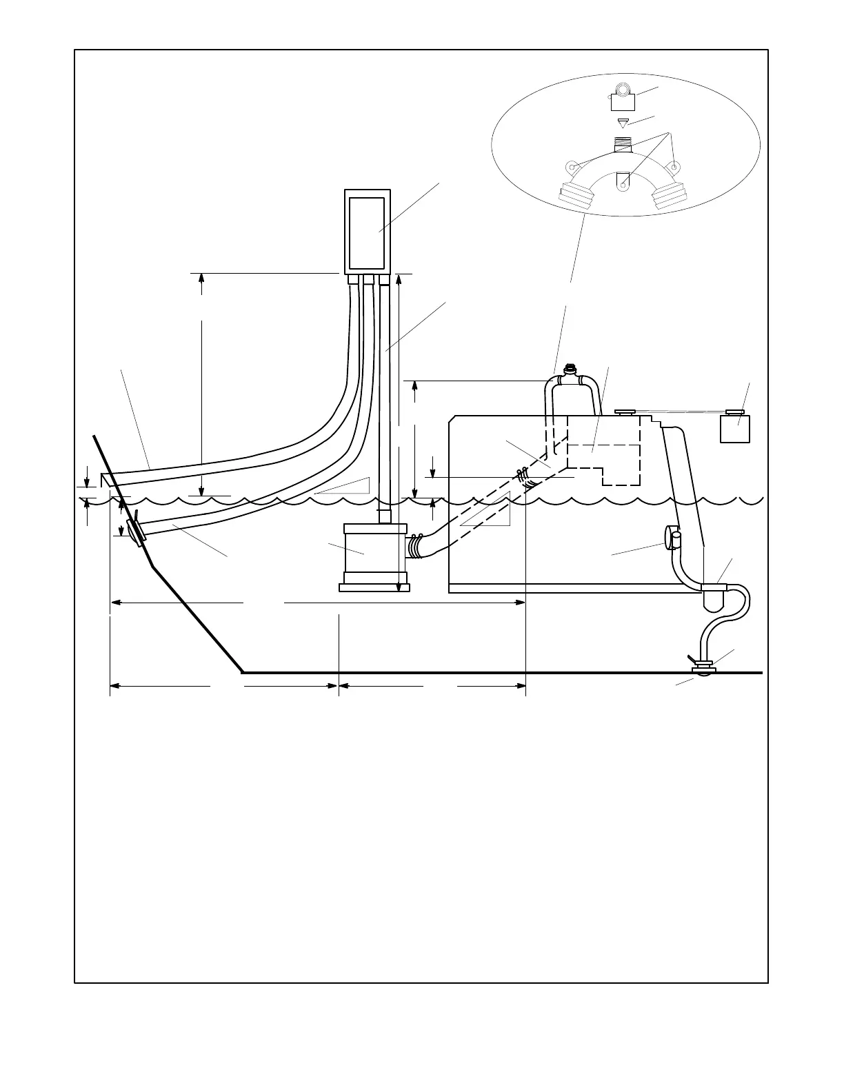
TP-7045 3/18c 21Section 4 Exhaust System
Note: Read the text for complete explanation
of dimensions and other installation
considerations.
Note: Use two hose clamps on each end of
all flexible exhaust hose connections.
Note: Data applies to both rear- and
side-exhaust installations.
Note: Damage caused by water ingestion will
not be covered by the generator
warranty.
Waterline
7
13
12
11
14
10
9
8
18
19
6
16
4
5
21
15
22
1. Cap
2. Reed valve
3. Mounting base
4. Maximum silencer vertical lift of 1.2 m (4 ft.)
5. Exhaust mixer elbow distance above waterline; if less than
23 cm (9 in.), a siphon break is required
6. Minimum siphon break distance above waterline of 30.5 cm
(1 ft.)
7. Siphon break
8. Exhaust m ixer elbow
9. Heat exchanger (locations vary by model)
10. Coolant recovery tank (located on the unit on some models)
11. Seawater strainer
12. Seacock
13. Intake strainer
14. Engine-driven seawater pump
15. Minimum exhaust hose pitch of 1.3 cm per 30.5 cm (0.5 in. per ft.)
16. Maximum distance between silencer and exhaust mixer elbow
of 3 m (10 ft.)
17. Maximum distance between silencer and exhaust outlet of
1.5 m (5 ft.)
18. Silencer (customer-supplied)
19. Minimum exhaust hose pitch of 1.3 cm per 30.5 cm
(0.5 in. per ft.)
20. Maximum distance between exhaust outlet and generator of
4.6 m (15 ft.)
21. Minimum exhaust outlet distance above waterline of 10 cm
(4 in.)
22. Exhaust hose (exhaust gas outlet hose after separator)
23. Gas/water separator (optional). Install directly above the
canister muffler.
24. Distance above waterline for drain outlet from silencer must be
equal to or greater than water drain (item 17) to be greater
than 30.5 cm (1 ft.)
25. Wa ter drain distance below waterline
26. Water drain (separated water from item 23)
27. System installer is responsible for designing enough capacity
into the lift muffler and plumbing to prevent engine water
ingestion upon shutdown. Otherwise, water will drain back
into item 18 on generator set shutdown.
20
23
2
1
3
17
24
25
27
26
Figure 4-6 Typical Mid- and Below-Waterline Installation with Optional Gas/Water Separator

Table of Contents

Other manuals for Kohler 35EFKOZD

Related product manuals