EasyManua.ls Logo

Kohler 35EFKOZD - Page 37

Kohler 35EFKOZD
84 pages
To Next Page IconTo Next Page
To Next Page IconTo Next Page
To Previous Page IconTo Previous Page
To Previous Page IconTo Previous Page
Loading...
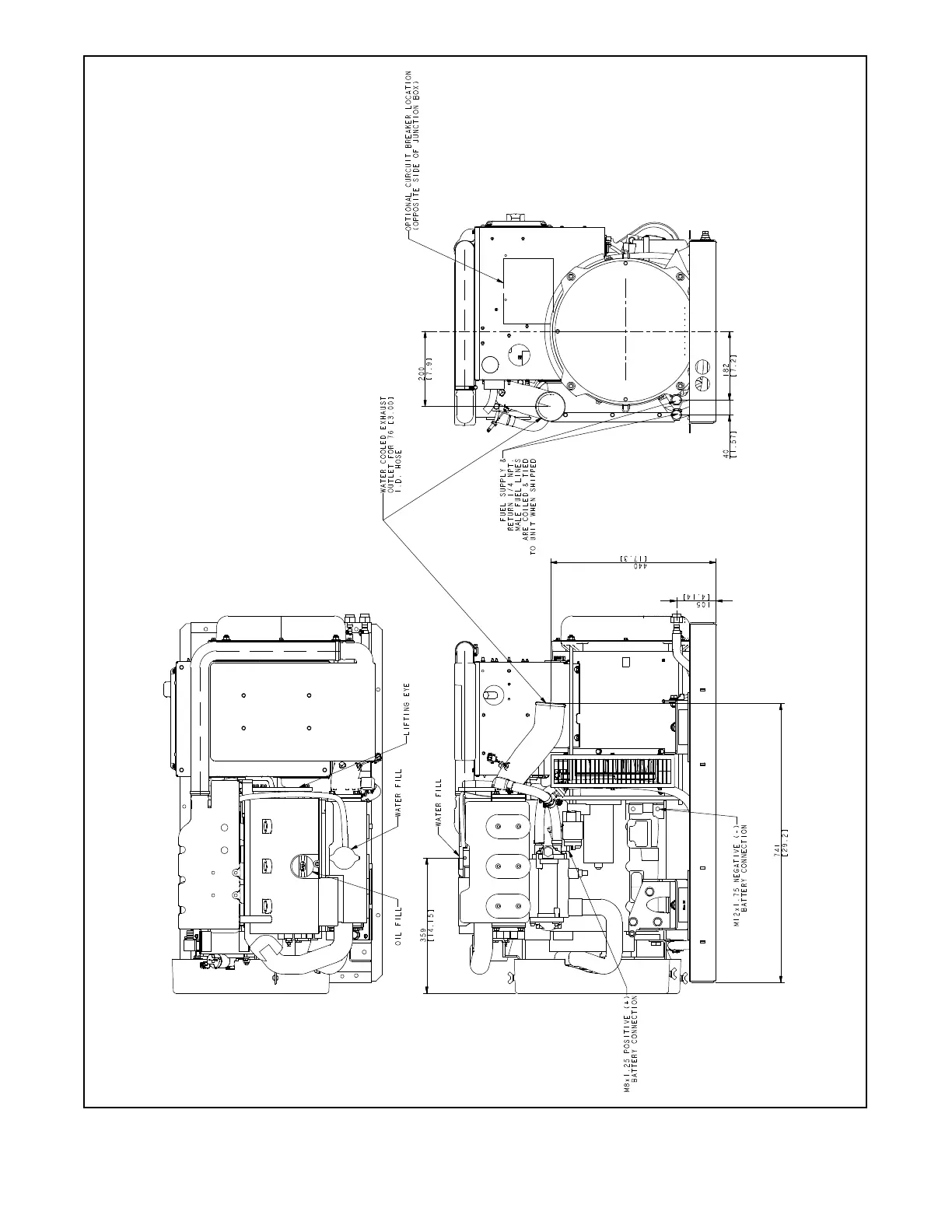
TP-7045 3/18c 37Section 7 Installation Drawings
ADV-8880B-
NOTE: Dimensions are shown in mm [in.].
Figure 7-3 Dimension Drawing, 14/16EKOZD and 12/13.5EFKOZD (Sheet 2 of 2)

Table of Contents

Other manuals for Kohler 35EFKOZD

Related product manuals