EasyManua.ls Logo

Kohler 40EKOZD

Kohler 40EKOZD
168 pages
To Next Page IconTo Next Page
To Next Page IconTo Next Page
To Previous Page IconTo Previous Page
To Previous Page IconTo Previous Page
Loading...
TP-7044 6/23 89
Anticorrosion Zinc Anode Replacement
Models
New Anode
Dimensions mm (in.)
Replace When Percent of
Zinc Remaining Is:
14EKOZD/12EFKOZD
16EKOZD/13.5EFKOZD
21EKOZD/18EFKOZD
17EFKOZD
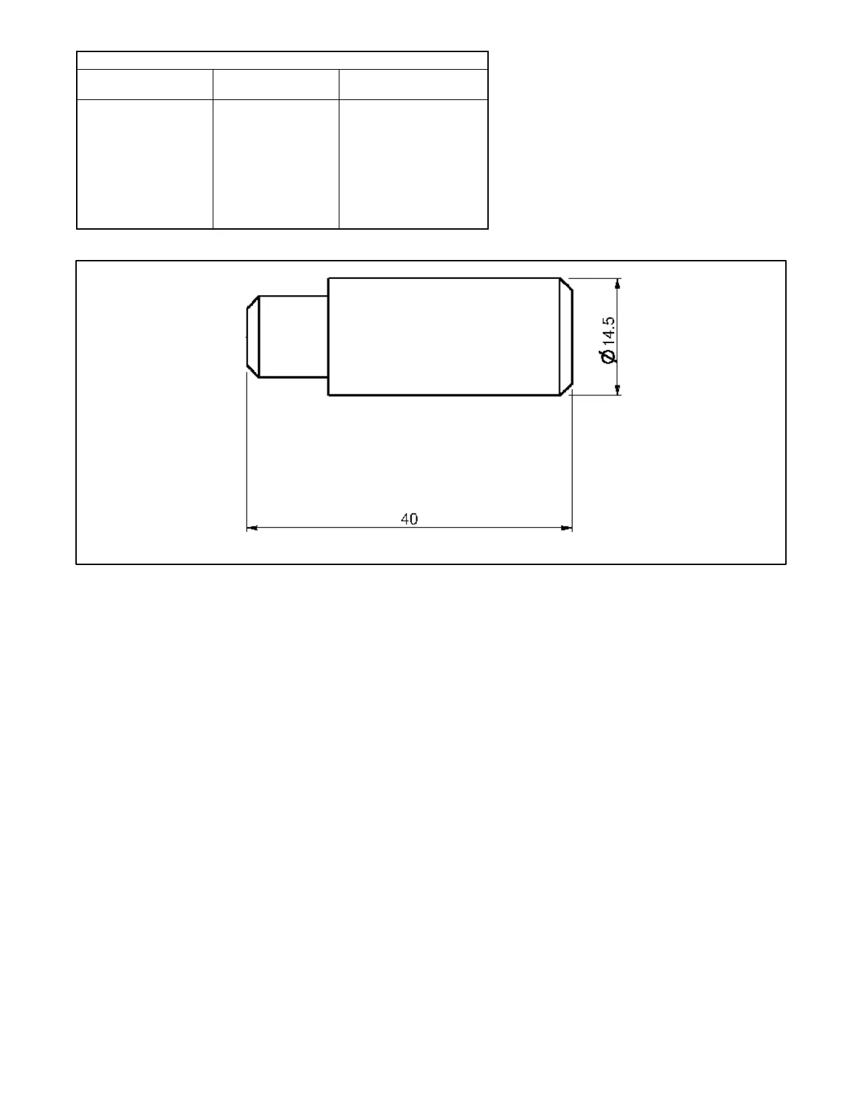
14.5 (0.57) x 40 (1.57)
<50% of length/diameter
24EKOZD/20.5EFKOZD
32EKOZD/28EFKOZD
40EKOZD/35EFKOZD
Figure 45 Anticorrosion Zinc Anode (Plug) Measurements
Figure 46 Anticorrosion Zinc Anode (Plug)
7. Clean the threaded hole of the heat exchanger and coat the threads of the anticorrosion zinc anode (plug) with pipe
sealant suitable for marine applications. Cut the anticorrosion zinc to the correct length. Install the anticorrosion zinc
anode into the heat exchanger.
8. Close the petcock on the engine and open the seacock. Refill the cooling system.
9. Check that the generator set is OFF.
10. Reconnect the generator set engine starting battery, negative (-) lead last.
11. Reconnect the power to the battery charger, if equipped.
12. Start the generator set and check for leaks at the anticorrosion zinc anode location. The pump is operating if the cooling
water flows from the exhaust outlet. If water is not discharging at the exhaust outlet, see the Prestart Checklist section
Seawater Pump Priming.
Diameter: 14.5 mm (0.57 in.)
Length: 40 mm (1.57 in.)

Table of Contents

Other manuals for Kohler 40EKOZD

Related product manuals