EasyManua.ls Logo

Kohler 5CKMR - Four-Lead Reconnectable Wiring; 120-Volt Wiring Configurations

Kohler 5CKMR
90 pages
To Next Page IconTo Next Page
To Next Page IconTo Next Page
To Previous Page IconTo Previous Page
To Previous Page IconTo Previous Page
Loading...
5-2 Wiring Diagrams TP-5393 9/93
Four-Lead Reconnectable
(Single-Phase) Generator Sets
Where Generator Output Can Be
Reconnected For 120 Volt or
120/240 Volt, 60 Hz; or
110 Volt or 110/220 Volt, 50 Hz
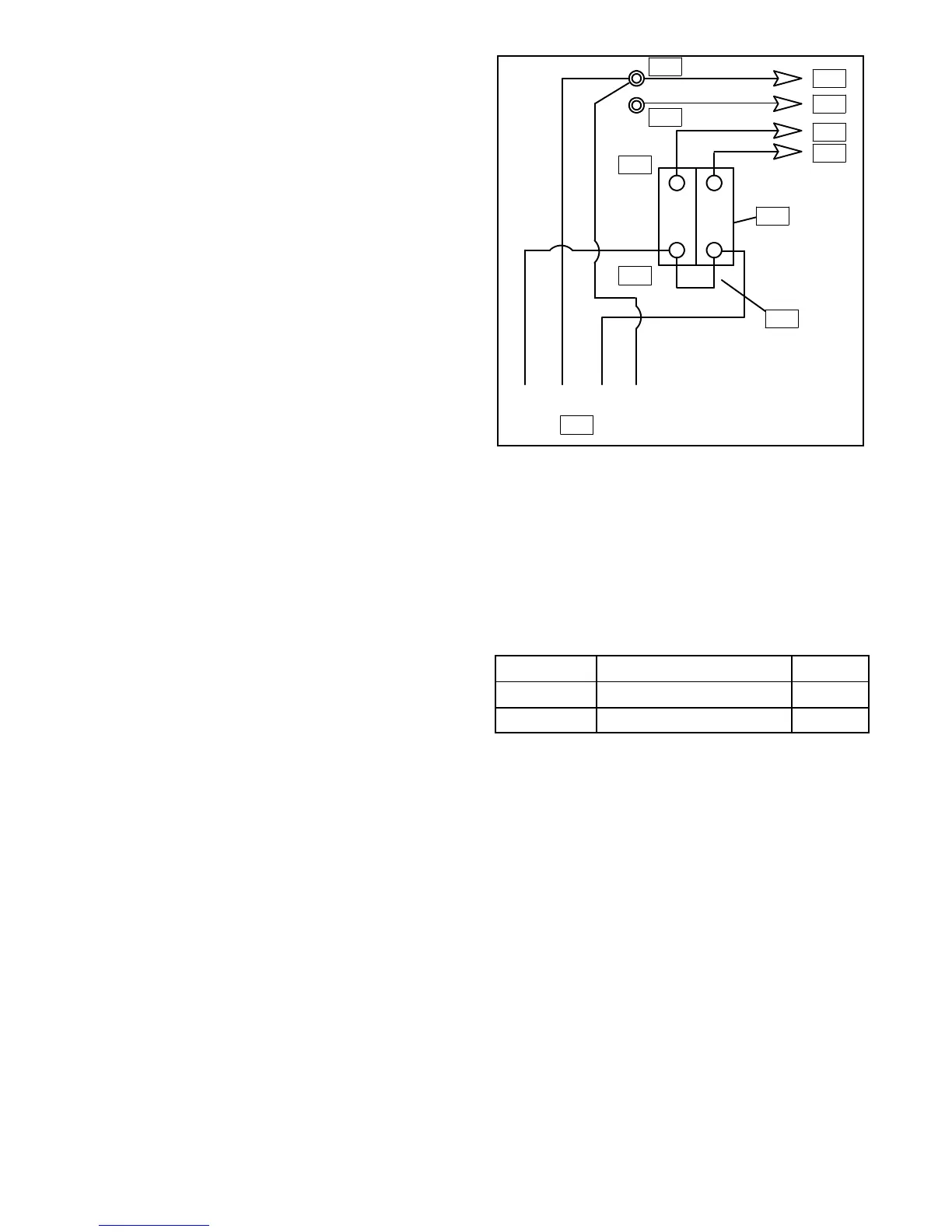
To illustrate theproper reconnection of 4-leadgenerator
sets, the following information is provided. In all cases,
the National Electrical Code (NEC) should be followed.
NOTE
When a generator set is reconnected to a voltage
different than nameplate voltage, notice should be
placed on the unit indicating this change. A decal (part
no.246242)isavailableforthispurposefromauthorized
Kohler dealers.
120-Volt (or 110-Volt)
ConfigurationsFigure 5-1 and
Figure 5-2 (Views A and B)
The load-side terminals of the circuit breaker are not to
be connected together when a factory two-pole circuit
breaker is used, see Figure 5-1. If the installation
requires a 120 volt, 2-wire system, a single-pole circuit
breaker must be used. See Figure 5-2. When
connecting stator phase leads together, the output lead
(L1) must besized accordingly. It is recommended that
a jumper lead be used on the line side of the circuit
breaker. This allows for balancing of the load of the
generator set.
4 3 2 1
1
2
3
4
5
6
7
8
9
10
11
1. L0 (Neutral)
2. Ground
3. L0
4. Ground
5. L1
6. L2
7. Factory Two-Pole or (2) 1-Pole Circuit Breakers
8. Jumper Lead
9. Stator Leads
10. Line Side
11. Load Side
Figure 5-1. View A120 Volt, 3 Wire
60 Hz 50 Hz
L0-L1 120 Volt 110 Volt
L0-L2 120 Volt 110 Volt

Table of Contents

Other manuals for Kohler 5CKMR

Related product manuals