EasyManua.ls Logo

Kohler 6000 Series

Kohler 6000 Series
96 pages
To Next Page IconTo Next Page
To Next Page IconTo Next Page
To Previous Page IconTo Previous Page
To Previous Page IconTo Previous Page
Loading...
11
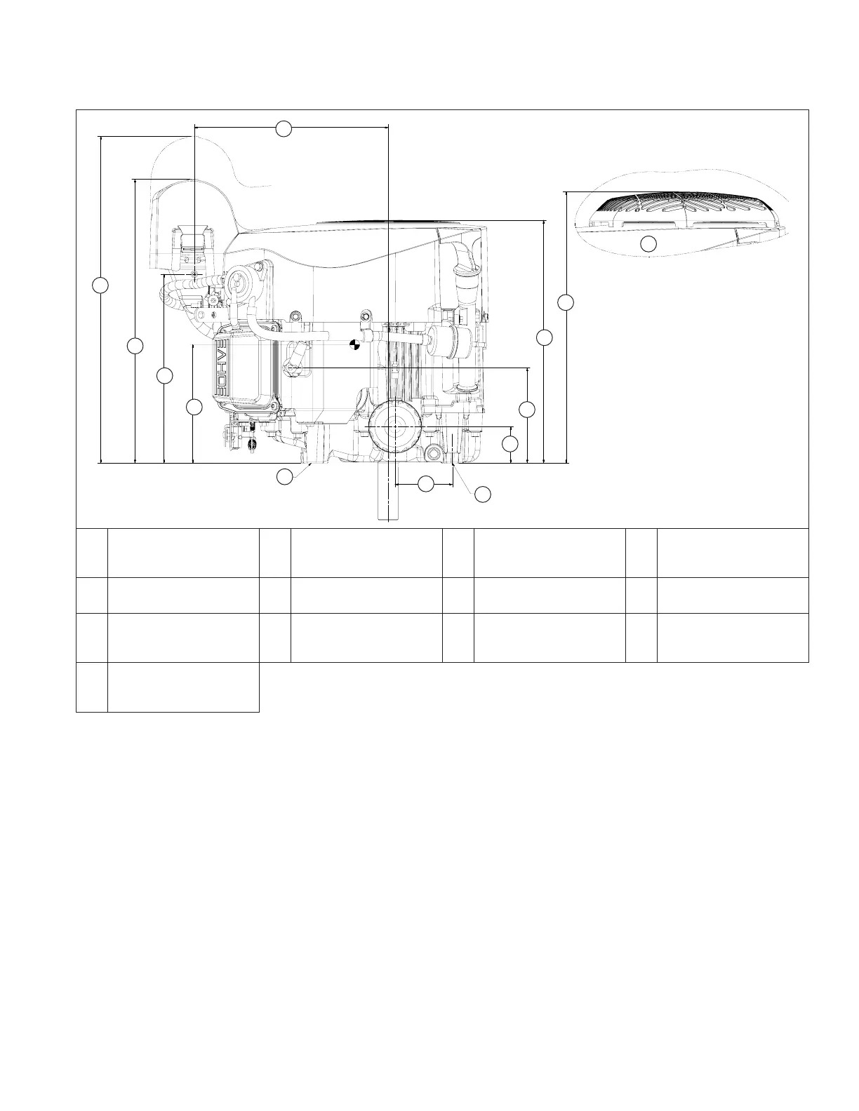
Speci cations
32 690 03 Rev. I KohlerEngines.com
Engine Dimensions with PRO Performance Air Cleaner-Oil Filter Side
A
B
C
D
E
F
G
H
I
L
M
K
J
A
458.7 mm (18.06 in.)
Air Cleaner
Removal
B
398.7 mm (15.70 in.)
Top of Air Cleaner
C
265.2 mm (10.44 in.)
Evap Connection
Point
D
166.5 mm (6.56 in.)
Center of Gravity
E
Engine Mounting
Surface
F
80.3 mm (3.16 in.)
Oil Filter
G Mounting Hole "A" H
51.2 mm (2.02 in.)
Oil Filter
I
134.0 mm (5.28 in.)
Spark Plug Center
Line
J 340.9 mm (13.42 in.) K 380.7 mm (14.99 in.) L Optional Fixed Guard
M
272.0 mm (10.71 in.)
Evap Connection
Point

Related product manuals