EasyManua.ls Logo

Kohler 7EFKOZD - Page 41

Kohler 7EFKOZD
56 pages
Print Icon
To Next Page IconTo Next Page
To Next Page IconTo Next Page
To Previous Page IconTo Previous Page
To Previous Page IconTo Previous Page
Loading...
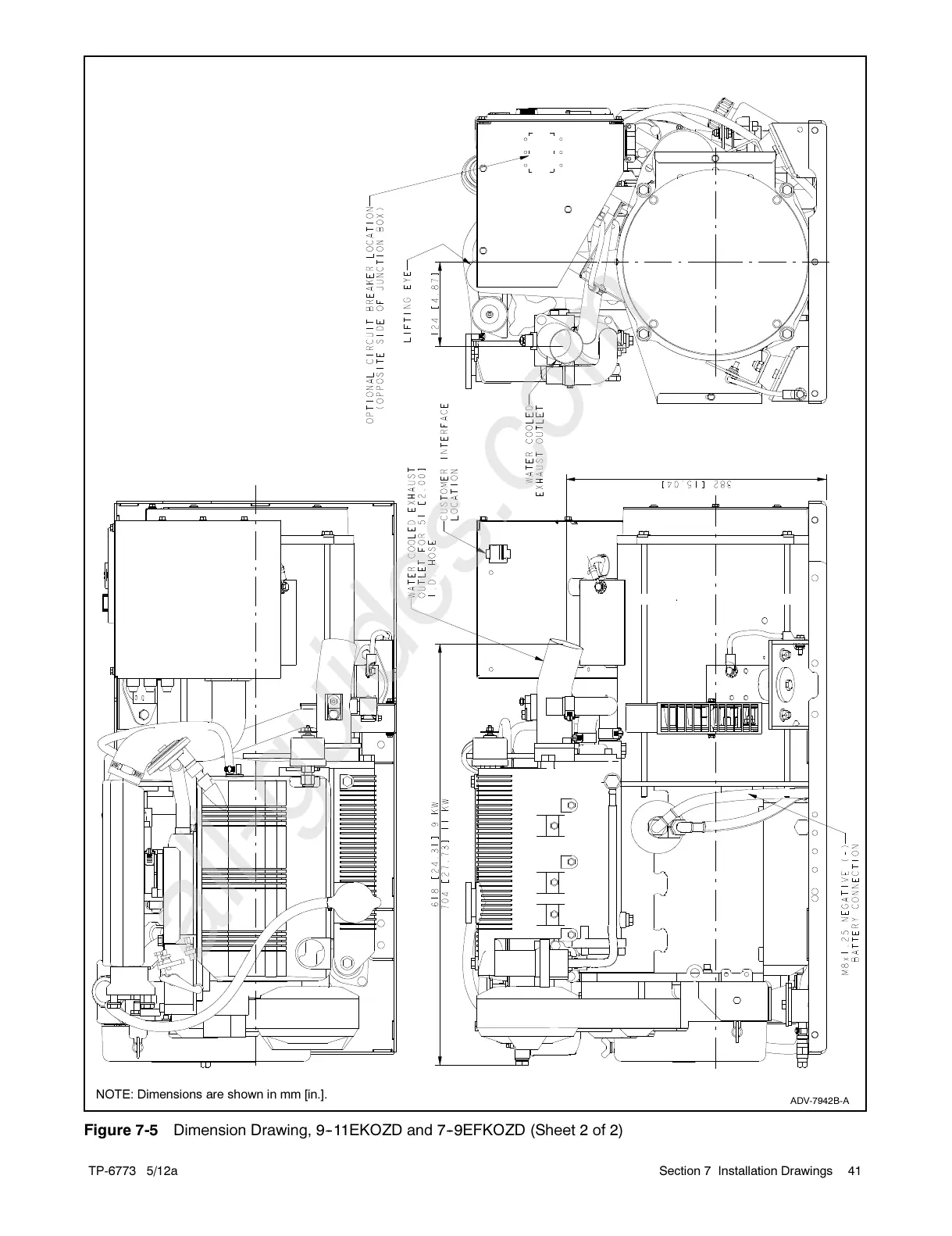
TP-6773 5/12a 41Section 7 Installation Drawings
ADV-7942B-A
NOTE: Dimensions are shown in mm [in.].
Figure 7-5 Dimension Drawing, 9--11EKOZD and 7--9EFKOZD (Sheet 2 of 2)
All manuals and user guides at all-guides.com
all-guides.com

Other manuals for Kohler 7EFKOZD

Related product manuals