EasyManua.ls Logo

Kohler 7EFKOZD - Page 43

Kohler 7EFKOZD
56 pages
Print Icon
To Next Page IconTo Next Page
To Next Page IconTo Next Page
To Previous Page IconTo Previous Page
To Previous Page IconTo Previous Page
Loading...
TP-6773 5/12a 43Section 7 Installation Drawings
ADV-7944-A
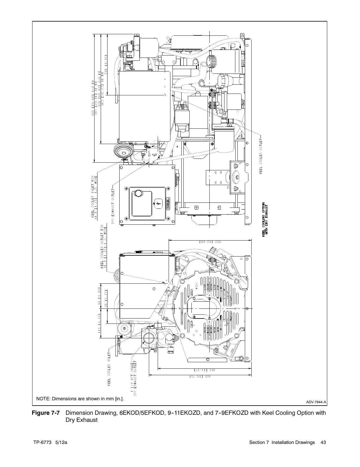
NOTE: Dimensions are shown in mm [in.].
Figure 7-7 Dimension Drawing, 6EKOD/5EFKOD, 9--11EKOZD, and 7--9EFKOZD with Keel Cooling Option with
Dry Exhaust
All manuals and user guides at all-guides.com

Other manuals for Kohler 7EFKOZD

Related product manuals