EasyManua.ls Logo

Kohler Command PRO ECH630 - Page 39

Kohler Command PRO ECH630
154 pages
Print Icon
To Next Page IconTo Next Page
To Next Page IconTo Next Page
To Previous Page IconTo Previous Page
To Previous Page IconTo Previous Page
Loading...
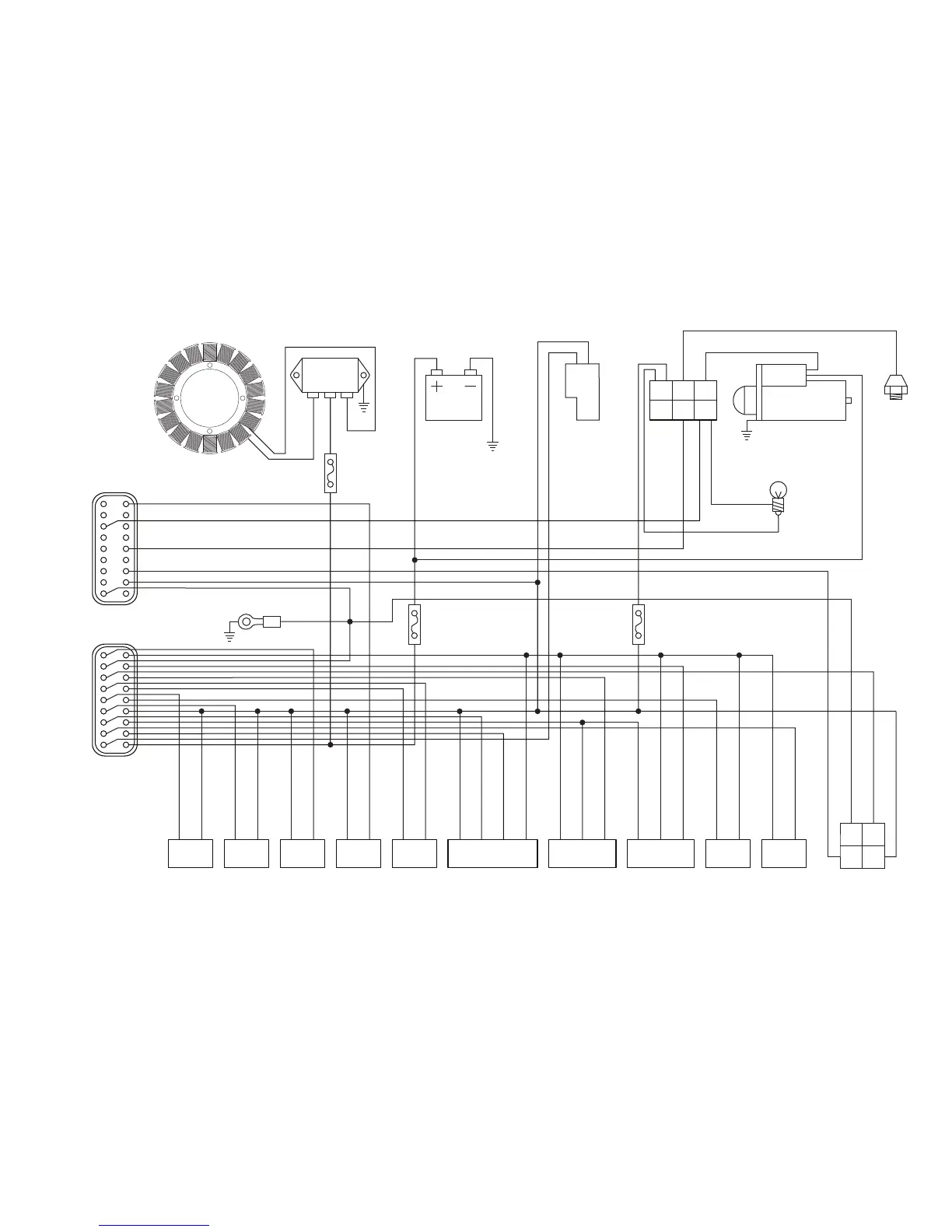
BLACK GREY
A B A B A B C DA B C 1 2 31 2A B C A B1 2
1 2
Fuel
Injector
#1
Fuel
Injector
#2
Ignition
Coil
#1
Ignition
Coil
#2
Crankshaft
Position
Sensor
Oxygen
Sensor
Throttle
Position
Sensor
Manifold
Absolute
Pressure
Sensor
Intake
Air
Temperature
Sensor
Oil
Temperature
Sensor
Battery
Fuel Pump
MIL
19
1018
19
1018
RED
WHITE
WHITE
BLACK
BLACK
BLACK
BLACK
BLACK
BLACK
BLACK
BLACK
BLACK
BLACK
RED/WHITE
RED/BLACK
GREY
GREY
PURPLE
PURPLE
PURPLE
PURPLE
TAN
TAN
DARK BLUE
DARK BLUE
DARK BLUE
DARK BLUE
DARK GREEN
DARK GREEN
DARK GREEN
DARK GREEN
YELLOW
PINK
LIGHT GREEN
RED/BLACK
RED/BLACK
RED/BLACK
RED/BLACK
RED/BLACK
RED/BLACK
31 2
6
4
5
Stator
Rectifier-
Regulator
Starter
Motor
RED
RED
10A
Fuse
6-Terminal
Connector
30A
Fuse
1 2
3
4
Diagnostic
Connector
10A
Fuse
Oil
Pressure
Switch
31 2
6-Terminal Connector

Other manuals for Kohler Command PRO ECH630

Related product manuals