EasyManua.ls Logo

Kohler LOMBARDINI 9 LD 626-2 NR / CE

Kohler LOMBARDINI 9 LD 626-2 NR / CE
140 pages
To Next Page IconTo Next Page
To Next Page IconTo Next Page
To Previous Page IconTo Previous Page
To Previous Page IconTo Previous Page
Loading...
123
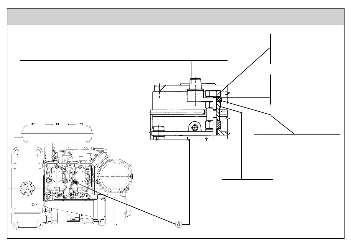
- Dado a colonnetta
- Écrou prisonnier
- Stud bolt nut
- Mutter für Stiftschraube
- Tuerca prisionera







- Termostato temperatura testa
- Thermostat température de la culasse
- Head temperature thermostat
- Thermostat Kopftemperatur
- Termostato temperatura culata

- Rondella elastica
- Rondelle élastique

- Federring


- Vite T.E. M10


- SK-Schraube M 10
- Tornillo hex M 10

8) Termostato temperatura testa - Thermostat température de la culasse - Head temperature thermostat - Thermostat Kopftemperatur


Table of Contents

Other manuals for Kohler LOMBARDINI 9 LD 626-2 NR / CE

Related product manuals