EasyManua.ls Logo

Koldwave AIRMASTER 2AK1011 - Page 12

Default Icon
32 pages
Print Icon
To Next Page IconTo Next Page
To Next Page IconTo Next Page
To Previous Page IconTo Previous Page
To Previous Page IconTo Previous Page
Loading...
12
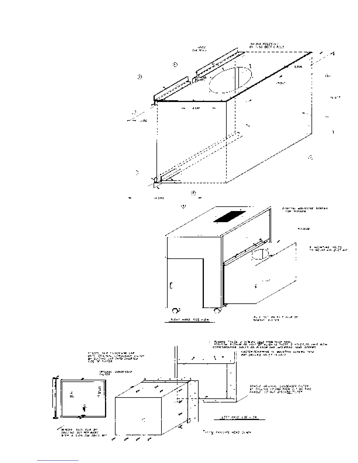
KOLDWAVE 2AK (AIRMASTER)
CONDENSATE RETURN AIR
PLENUM (OPTIONAL)
SA076-D-2273
A 20 gauge, painted steel,
condenser return air plenum can
be furnished for applications of the
Koldwave Airmaster as a room air
conditioner. This plenum is
designed for use with a flexible
duct kit assembly. The duct collar
of the duct kit assembly can be
secured with four screws over a
10" diameter hole in the top of the
plenum. The duct can then be
connected to the lay-in ceiling
panel, so condenser return air is
drawn from the false ceiling above
the unit.
The plenum is mounted to the
condenser air intake by sheet
metal screws. A filter frame is
incorporated in its design to allow
easy removal of the filter for
cleaning from the right side of the
unit. The filter frame is made to
accept the unit’s standard
condenser air filter with the filter
handle relocated from the bottom
to side of filter at installation.
NOTE: See “Application” section
for typical installation.

Related product manuals