EasyManua.ls Logo

koppel KV 36ODU-ARF21 - Dimensions

Default Icon
144 pages
Print Icon
To Next Page IconTo Next Page
To Next Page IconTo Next Page
To Previous Page IconTo Previous Page
To Previous Page IconTo Previous Page
Loading...
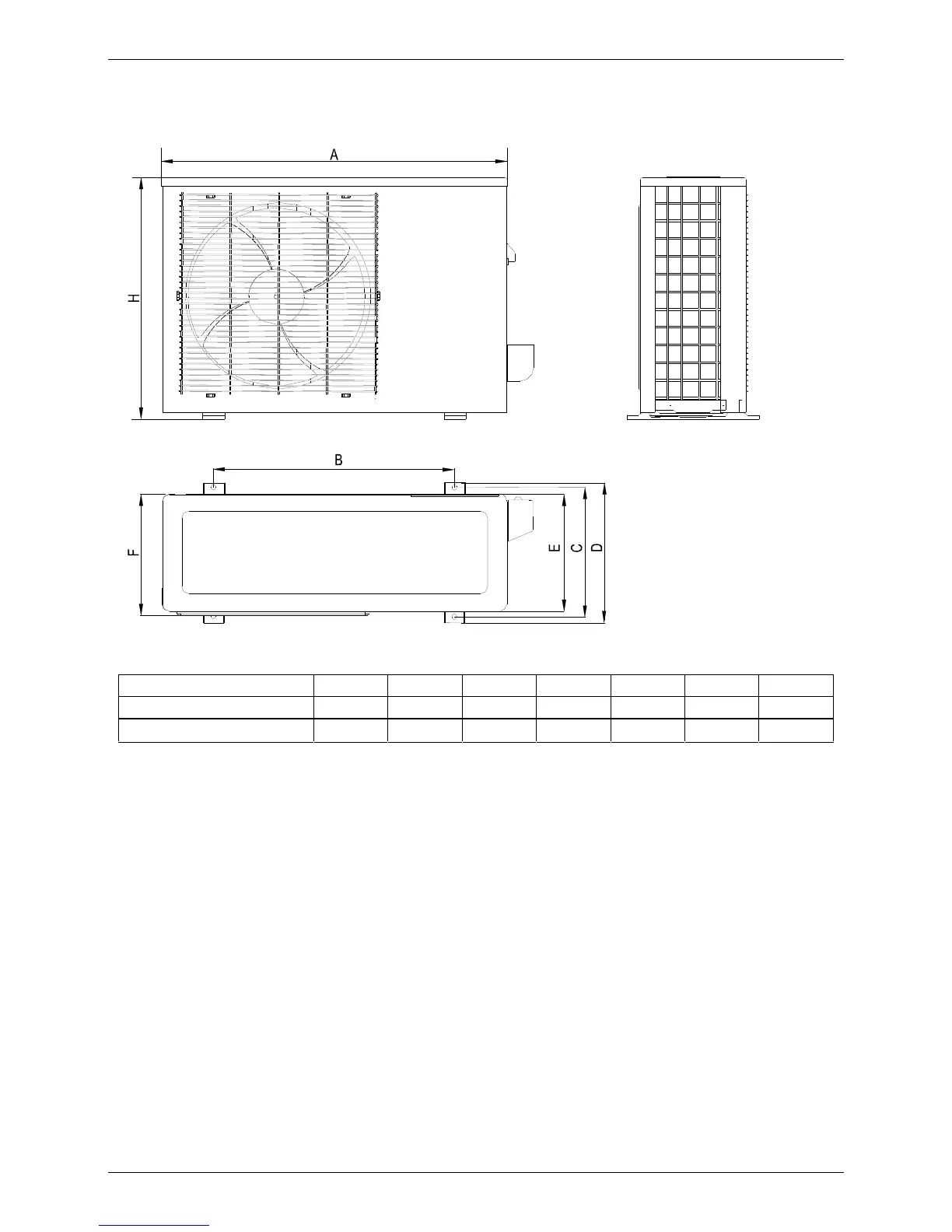
Dimensions
1. Dimensions
Unit: mm
MODEL A B C D E F H
KV24ODU-ARF21
845 560 335 360 312 320 700
KV36ODU-ARF21 / B 990 624 366 396 340 345 965
64

Table of Contents

Related product manuals