EasyManua.ls Logo

Kroll W401K - Electrical Circuit Diagram; Diagram Explanation and Component Labels

Kroll W401K
16 pages
Print Icon
To Next Page IconTo Next Page
To Next Page IconTo Next Page
To Previous Page IconTo Previous Page
To Previous Page IconTo Previous Page
Loading...
12
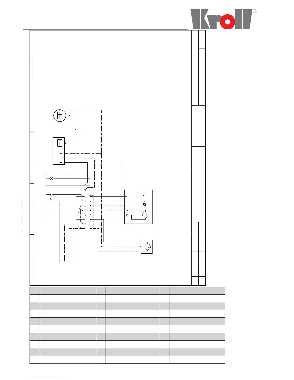
B1 Thermostat B1 Thermostat B1 Thermostat
B2 Mikroschalter B2 Micro switch B2 Microrupteur
H1 Signallampe H1 Operating lamp H1 Lampe d’utilisation
M1 Getriebemotor M1 Motor M1 Moteur
M2 Verbrennungsluftgebläse M2 Combustion air fan M2 Souferie d’air de combustion
M3 Gebläse M3 Fan M3 Ventilateuer
S1 EIN/AUS Schalter S1 ON/OFF switch S1 Interrupteur MARCHE/ARRET
X1 Motorkonsole X1 Motor mount complete X1 Support de moteur complète
X2 Überlaufsicherung X2 Overow security X2 Sécurité de débordement
X3 Gebläse V470 X3 Fan V470 X3 Ventilateur V470
Schaltplan / Circuit diagram / Schema électrique
01
2 34
567
89
Änderung Datum Name
Gepr.
Norm
Datum
Urspr. Ers.f
Zust.
Bearb.
Blatt 1
N PE
L
PE
N
11
14
B1
X1 = Motorkonsole
braun
blau
grün/gelb
schwarz
grau
X2
Ölflex 5x0,75 m
1 2 3 4 5
L1
2 31
L3 N PE
L1
M
M2
L2
H1
BU
CN 2
S2 M1
X1
W1
B1 = Thermostat
B2 = Microschalter
H1 = Signallampe
M1 = Ölpumpe
M2 = Verbrennungsluftgebläse
S1 = EIN/AUS Schalter
S2 = Drehzahlsteller
N FG
X1 = Steckleiste
X2 = Überlaufsicherung
W1 = Verbindungsleitung
M
M3
M3 = Warmluftgebläse
L
046886-17
W401K
1a3a
4a 2a
S1
B2
10.11.17

Related product manuals