EasyManua.ls Logo

Kubota D1503-M-E - Wiring Diagrams

Kubota D1503-M-E
39 pages
Print Icon
To Previous Page IconTo Previous Page
To Previous Page IconTo Previous Page
Loading...
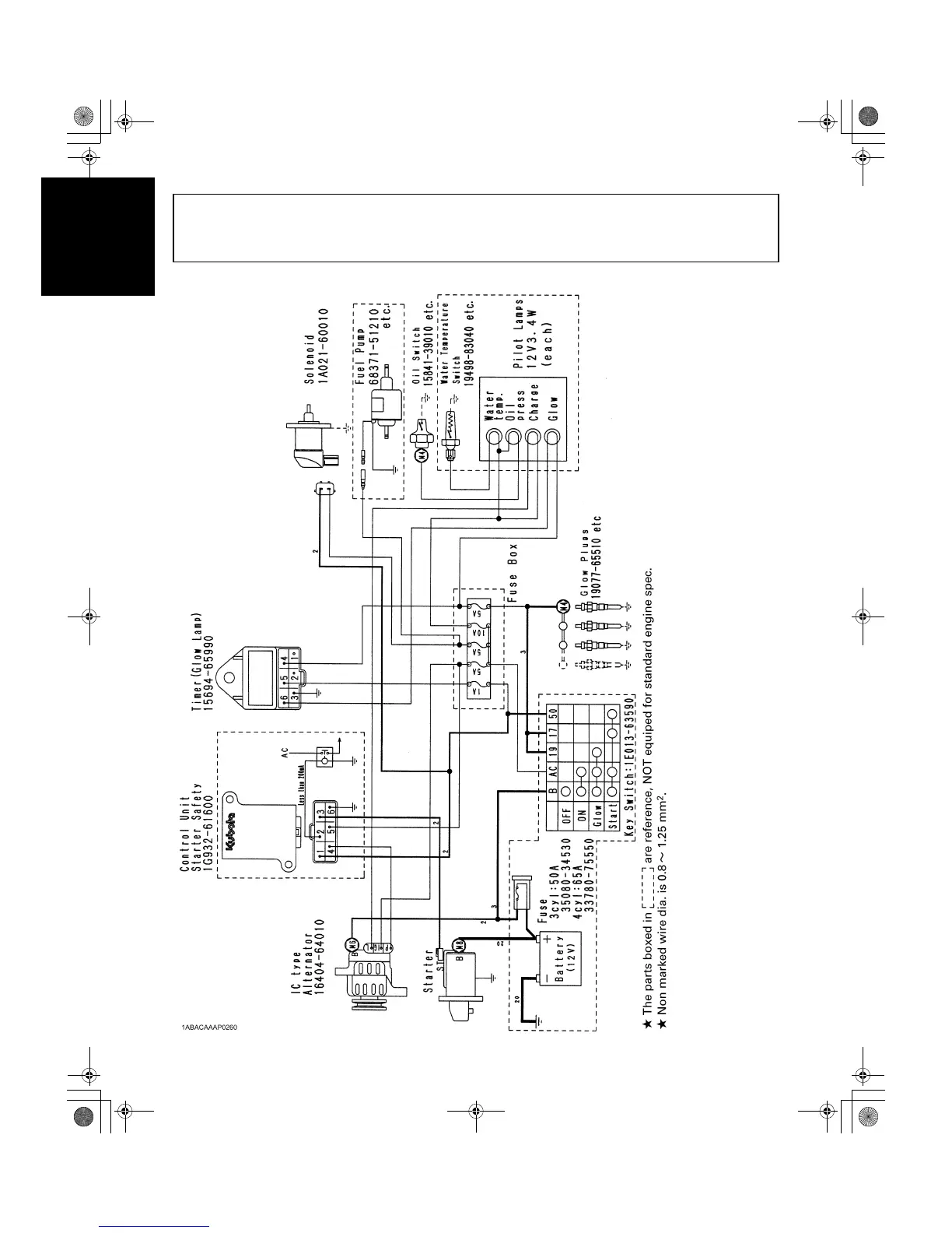
28 WIRING DIAGRAMS
ENGLISH
WIRING DIAGRAMS
1ABK0000132.book 28 ページ 2004年2月19日 木曜日 午前10時30分

Related product manuals