EasyManua.ls Logo

Kubota V1505-E3 - Wiring Diagrams

Kubota V1505-E3
74 pages
Print Icon
To Next Page IconTo Next Page
To Next Page IconTo Next Page
To Previous Page IconTo Previous Page
To Previous Page IconTo Previous Page
Loading...
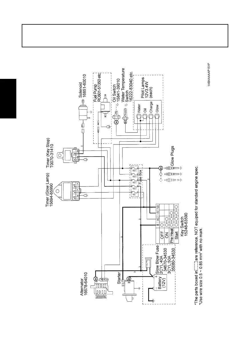
56 WIRING DIAGRAMS
ENGLISH
WIRING DIAGRAMS
[Z482-E3, Z602-E3, D722-E3, D782-E3, D902-E3]
EU standard for Alternator (Energize to stop)

Related product manuals