EasyManua.ls Logo

KVS MORAVIA TYPE 9101 - Important Notice

Default Icon
16 pages
Print Icon
To Next Page IconTo Next Page
To Next Page IconTo Next Page
To Previous Page IconTo Previous Page
To Previous Page IconTo Previous Page
Loading...
TYPE 9101 07/2014 14
1. Production standards
KVS MORAVIA solid fuel appliances are produced in accordance ČSN EN12815:2002 Standard
with amended A1:2005, which is valid for the Czech Republic and European Union.
2. Installation and operation standards
All the above installation and operation instructions for the appliances primarily comply with the
Czech regulations, and may not comply fully to individual national regulations at place of
installation and use!
The buyer should consult their installer or specialised officials on all of the local installation and
operation regulations for this appliance or similar appliances!
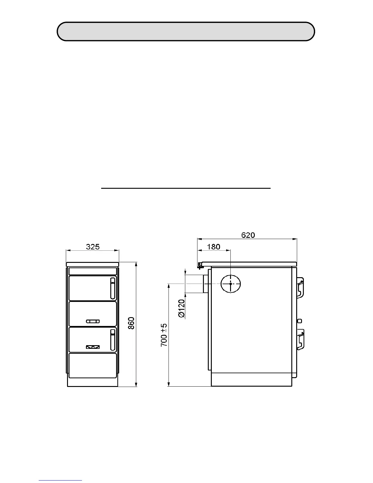
Dimensional Sketch of the appliance
Type 9101
(All of dimensions are in mm)
Important notice