EasyManua.ls Logo

Lagoon 410-S2 - STEERING SYSTEM, EMERGENCY SYSTEM; Steering System Components and Operation

Lagoon 410-S2
39 pages
Print Icon
To Next Page IconTo Next Page
To Next Page IconTo Next Page
To Previous Page IconTo Previous Page
To Previous Page IconTo Previous Page
Loading...
LAGOON 410-S2
MAJ ANG 22/12/05 32 / 39
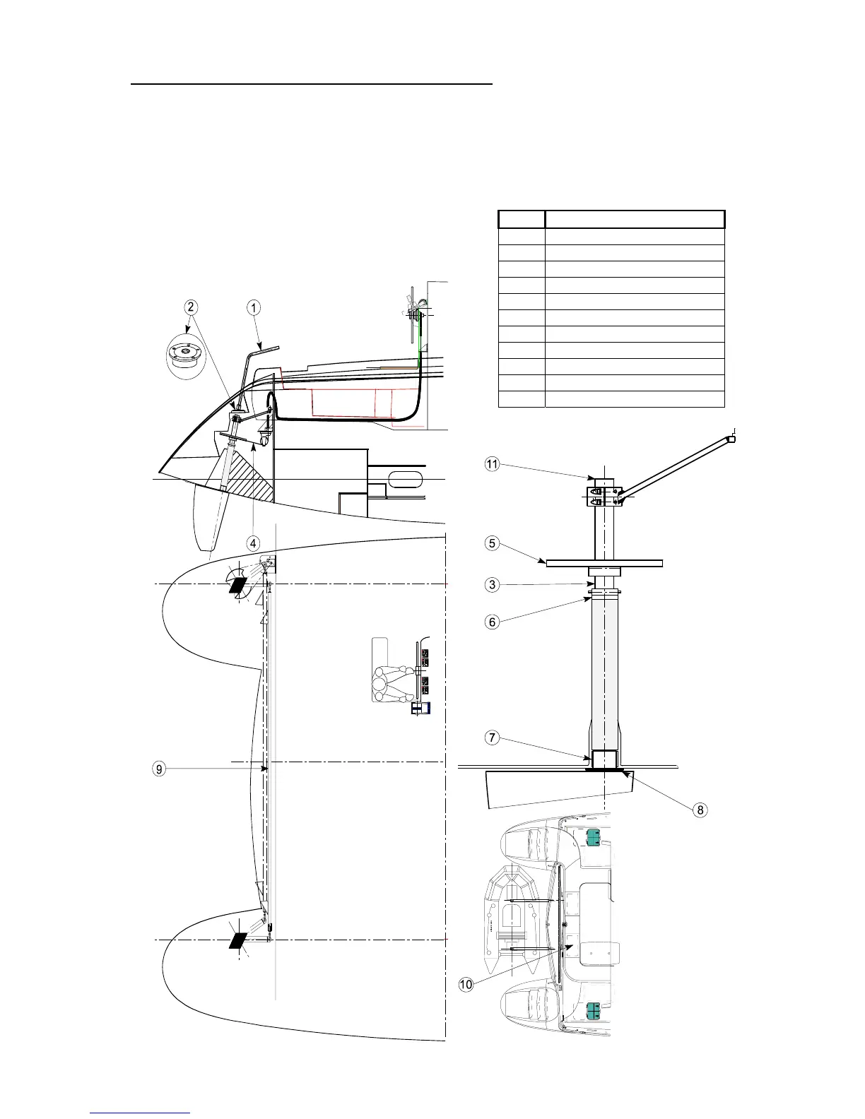
XI) STEERING SYSTEM, EMERGENCY SYSTEM
Boats who are fitted with a steering wheel carry an emergency tiller ; keep clear emergency tiller
access.
Check once a year at least that the steering cables are tight properly.
Lift the aft cover, open the cap, drive the emergency tiller into the print on the rudderstock head.
REF DESCRIPTION
1 Emergency Tiller
2 Cap to Get to the Rudder Stock
3 Rudder Stock
4 Steering Cable
5 Quadrant
6 Rudder Shaft Bearing
7 Bronze Bearing
8 Compensation Washer
9 Tie Rod
10 Location of Emergency Tiller
11 Print on Rudder Stock Head