EasyManua.ls Logo

Lang DO36L - Oven Phasing; Load Requirements

Default Icon
24 pages
Print Icon
To Next Page IconTo Next Page
To Next Page IconTo Next Page
To Previous Page IconTo Previous Page
To Previous Page IconTo Previous Page
Loading...
5
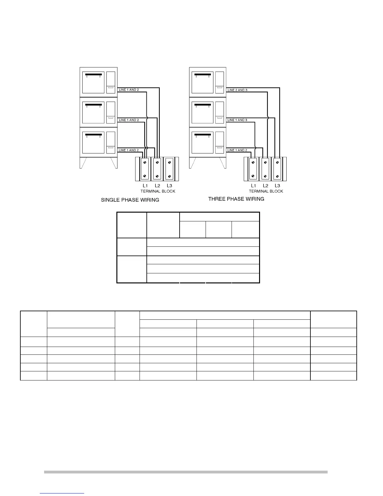
OVEN PHASING
OVEN
Power
Supply
Terminal
Block
1ST
Deck
2ND
Deck
3RD
Deck
L1 X X X Single
Phase
L2 X X X
L1 X X
L2 X X
Three
Phase
L3 X X
LOAD REQUIREMENTS
LOADING THREE PHASE AMPS
KW PER PHASE
208 VOLT 240 VOLT 480 VOLT
SINGLE
PHASE AMPS
MODEL
NO.
LI L2 L2 L3 L3 L1
TOTA
L Kw
L1 L2 L3 L1 L2 L3 L1 L2 L3 208V 240V
DO36I
6 0 0 6 28.8 28.8 0 25 25 0 12.5 12.5 0 28.8 25
DO36L
6 0 0 6 28.8 28.8 0 25 25 0 12.5 12.5 0 28.8 25
D036
6 0 0 6 28.8 28.8 0 25 25 0 12.5 12.5 0 28.8 25
DO362
6 0 6 12 50 28.8 28.8 43.3 25 25 21.7 12.5 12.5 57.7 50
D0363
6 6 6 18 50 50 50 43.3 43.3 43.3 21.7 21.7 21.7 86.5 75

Related product manuals