EasyManua.ls Logo

Lauda IN 150 XT - Page 189

Default Icon
200 pages
Print Icon
To Next Page IconTo Next Page
To Next Page IconTo Next Page
To Previous Page IconTo Previous Page
To Previous Page IconTo Previous Page
Loading...
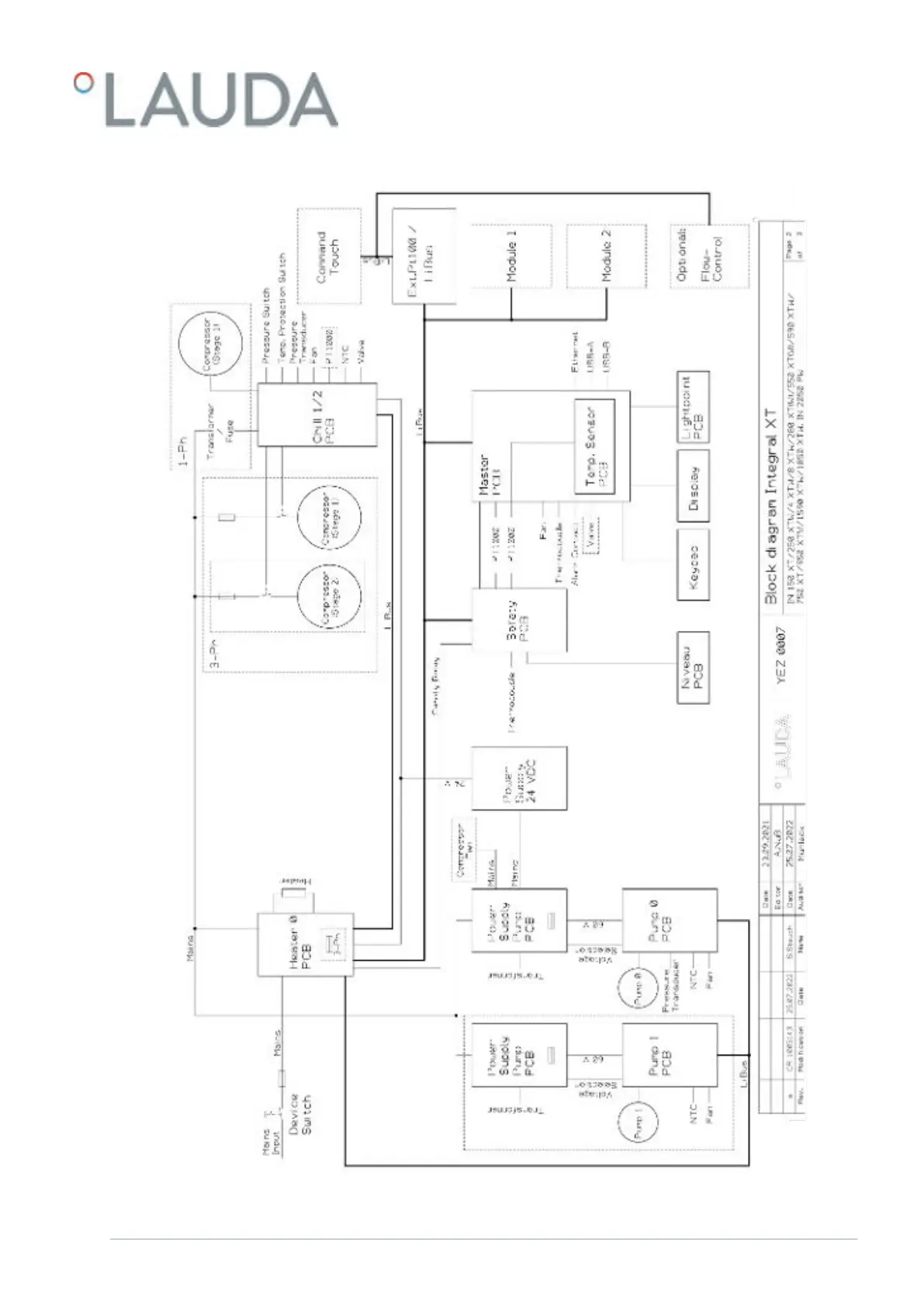
Fig. 102: Modular mimic display for Integral XT (without IN 2560 XTW/PW)
V6 Integral Process Thermostats and High-Temperature Thermostats 189 / 198

Table of Contents

Related product manuals