EasyManua.ls Logo

Lennox BAG065DHM - Page 117

Lennox BAG065DHM
137 pages
To Next Page IconTo Next Page
To Next Page IconTo Next Page
To Previous Page IconTo Previous Page
To Previous Page IconTo Previous Page
Loading...
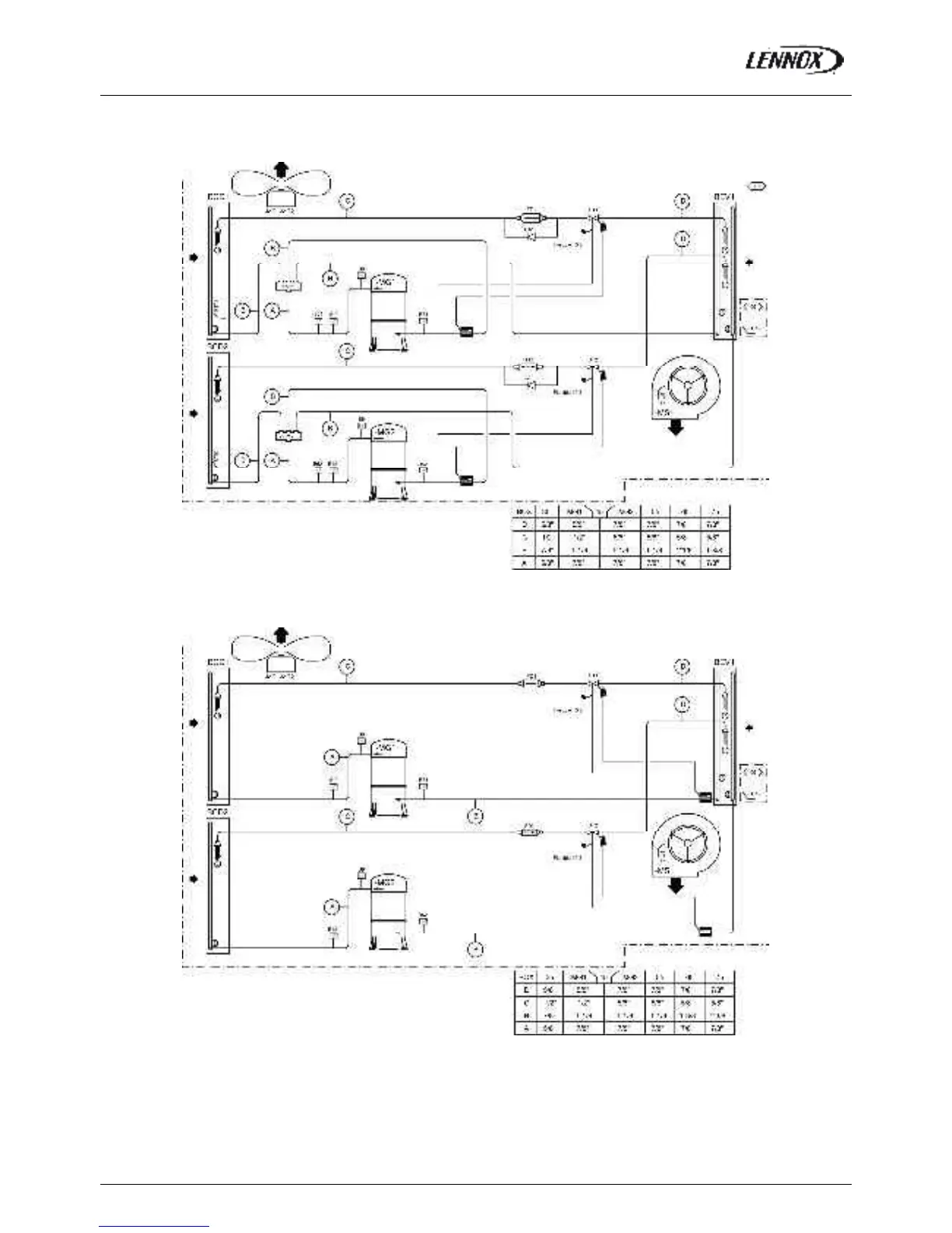
PRINCIPLE SKETCHES
BALTIC R410A-IOM-0708-E Page 116
BAH 065 to 075 dual circuit
BAC 065 to 075 dual circuit
PIPE DIAMETERS
PIPE DIAMETERS
EQUALIZING LINE
EQUALIZING LINE
EQUALIZING LINE

Table of Contents

Related product manuals