EasyManua.ls Logo

Lennox BAH055SNM - Page 34

Lennox BAH055SNM
137 pages
To Next Page IconTo Next Page
To Next Page IconTo Next Page
To Previous Page IconTo Previous Page
To Previous Page IconTo Previous Page
Loading...
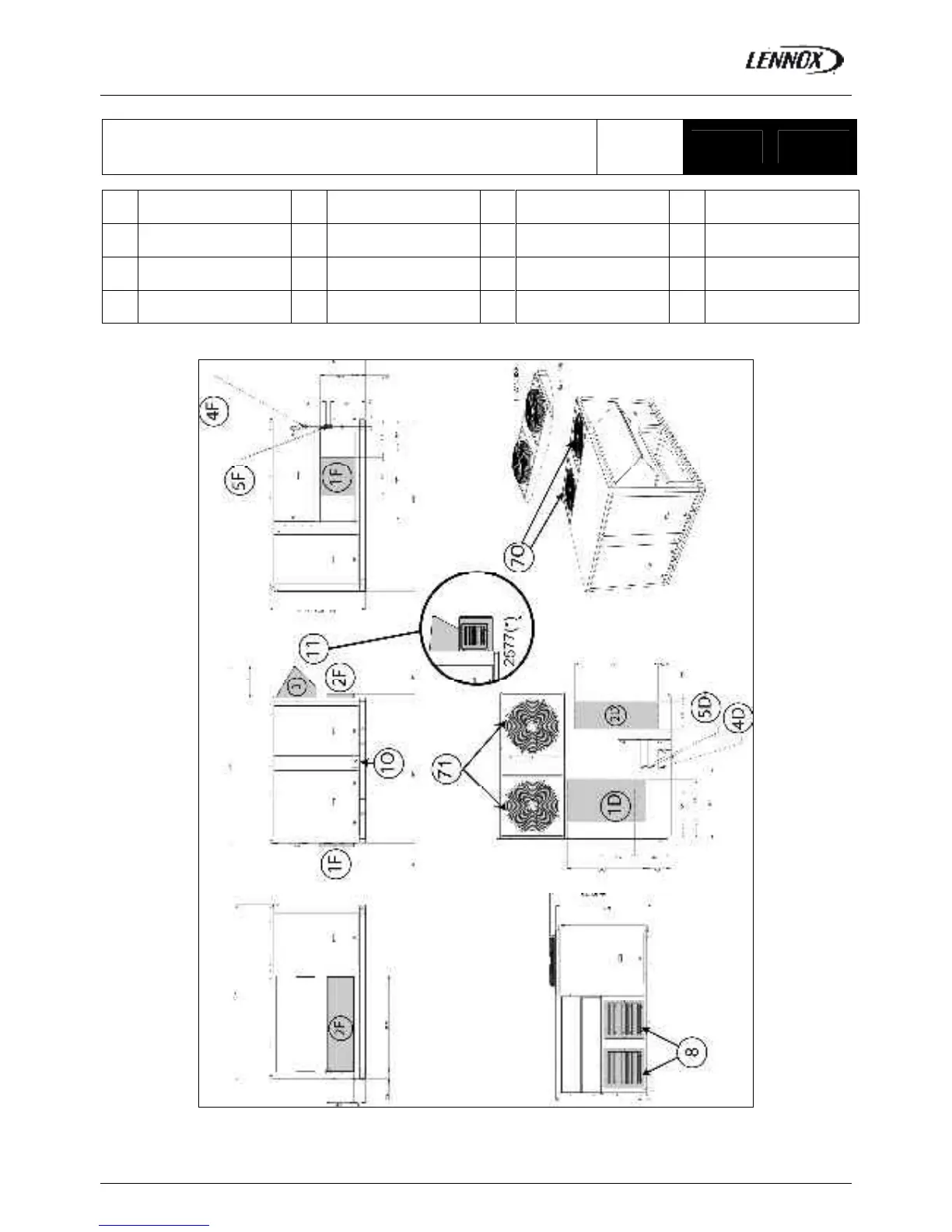
ARRANGEMENT DRAWINGS
BALTIC R410A-IOM-0708-E Page 33
WITH OPTIONS
(Return and supply opening shown on this drawing do not apply to
BAC/BAH with electric heater or hot water coil )
BAC
BAH
045 055
1D Down supply air 3 Fresh air 5D Down hot water entry 8 Extraction
1F Front supply air 4F Front main power entry 9 Smoke outlet
2D Down return air 4D
Down main power
entry
71 Outdoor coil inlet 10 Condensate drainage
2F Front return air 5F Front hot water entry 70 Outdoor coil outlet
(*) Total Length (unit + option)

Table of Contents

Related product manuals