EasyManua.ls Logo

Lennox BAH055SNM - Transition Roofcurb

Lennox BAH055SNM
137 pages
To Next Page IconTo Next Page
To Next Page IconTo Next Page
To Previous Page IconTo Previous Page
To Previous Page IconTo Previous Page
Loading...
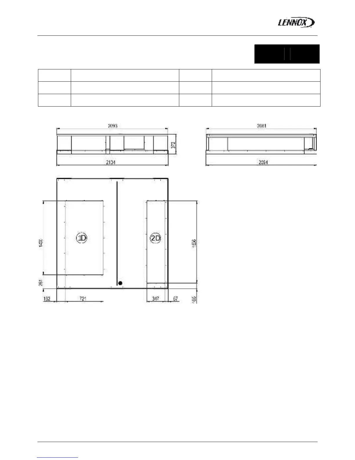
TRANSITION ROOFCURB
BALTIC R410A-IOM-0708-E Page 53
BAC
BAH
BAG
BAM
065 075
1D Down supply air 4D Down main power entry
2D Down return air 5D Down hot water entry
8 Main power entry 9 Exhaust

Table of Contents

Related product manuals