EasyManua.ls Logo

Lennox BAH055SNM - Page 53

Lennox BAH055SNM
137 pages
Print Icon
To Next Page IconTo Next Page
To Next Page IconTo Next Page
To Previous Page IconTo Previous Page
To Previous Page IconTo Previous Page
Loading...
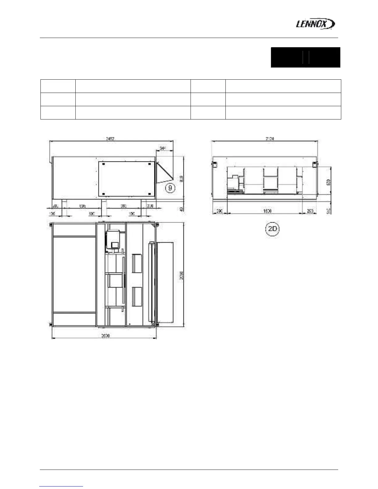
EXHAUST HORIZONTAL ROOFCURB
BALTIC R410A-IOM-0708-E Page 52
BAC
BAH
BAG
BAM
065 075
1D Down supply air 4D Down main power entry
2D Down return air 5D Down hot water entry
8 Main power entry 9 Exhaust

Table of Contents

Related product manuals