EasyManua.ls Logo

Lennox BAH065DNM - Energy Recovery Option

Lennox BAH065DNM
137 pages
To Next Page IconTo Next Page
To Next Page IconTo Next Page
To Previous Page IconTo Previous Page
To Previous Page IconTo Previous Page
Loading...
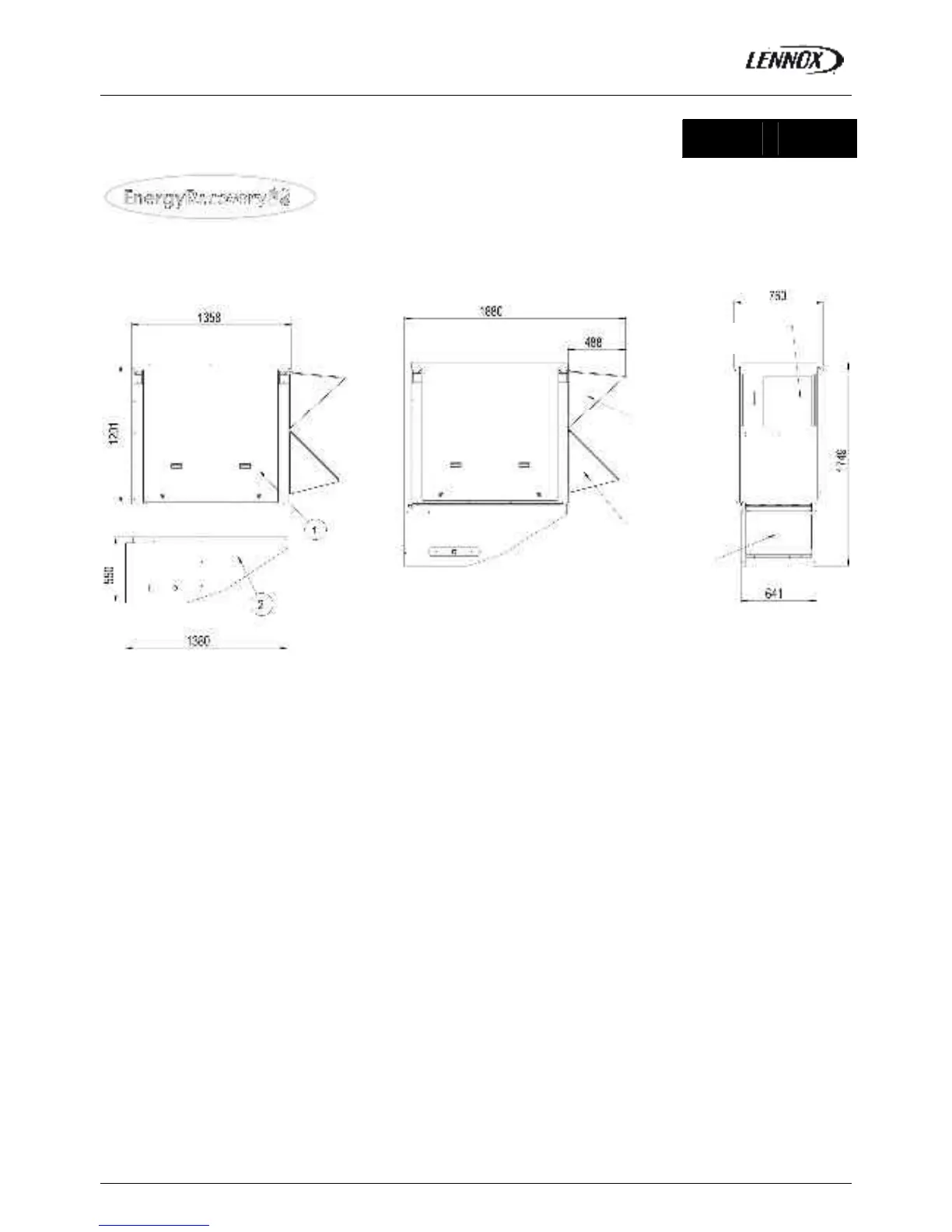
ENERGY RECOVERY OPTION
BALTIC R410A-IOM-0708-E Page 54
020 030
Part 1 and 2 are supplied loose + Fresh air and extracted air hood closed
Exhaust air
Fresh air
Exhaust air
Fresh air

Table of Contents

Related product manuals