EasyManua.ls Logo

Lennox Baltic BCK 020 - Electric Heater

Lennox Baltic BCK 020
159 pages
To Next Page IconTo Next Page
To Next Page IconTo Next Page
To Previous Page IconTo Previous Page
To Previous Page IconTo Previous Page
Loading...
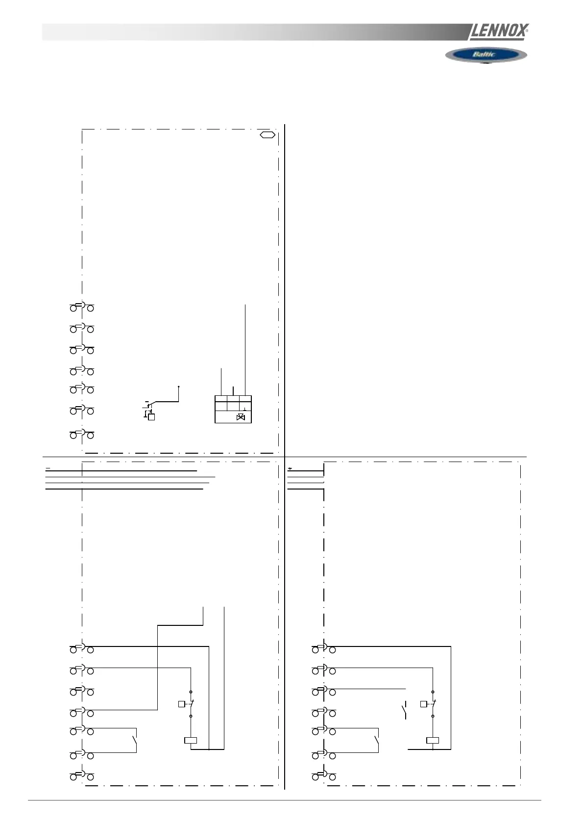
Page 136 - IOM / ROOFTOP BALTIC Series - 0704 - E
ELECTRICAL DATA - wiring diagrams
FULLY MODULATING ELECTRIC HEATER
02.1 02.2
3+ 4-
1 2
-V1
3+ 4-
1 2
-V1
-QE1
12
34
56
-KE1
12
34
56
-E1
PE
L12
L11
L13
A7 A6 A5 A4
A6A7
40
A5 A4
02 71
A3 A2 A1
A2A3 A1
26 01
-KE1
1314
-KE1
A1A2
T
<
-B25
-X7
28
-X7
26
-QE2
12
34
56
-E2
PE
-KE2
12
34
56
-E1
PE
-QE1
12
34
56
-KE1
12
34
56
-KE2
A1A2
L12
L11
L13
38
A6
A6
0240 01
A1
A1
26
A2
A2
30
A3
A3A7
A7
-KE1
1314
-KE1
A1A2
A5
A5
A4
A4
-KE1
5354
T
<
-B25
-X7
28
-X7
26
A6A7 A5 A4
A7 A5A6 A4
0240 71
A3 A2 A1
A1A3 A2
0101
<T
-B14
2
1
3
-YV2
0...10V
DC
3
24V
AC
2
24V
1
03
STAGED ELECTRIC HEATER

Table of Contents

Related product manuals