EasyManua.ls Logo

Lennox CB30M-65

Lennox CB30M-65
20 pages
To Next Page IconTo Next Page
To Next Page IconTo Next Page
To Previous Page IconTo Previous Page
To Previous Page IconTo Previous Page
Loading...
Page 17
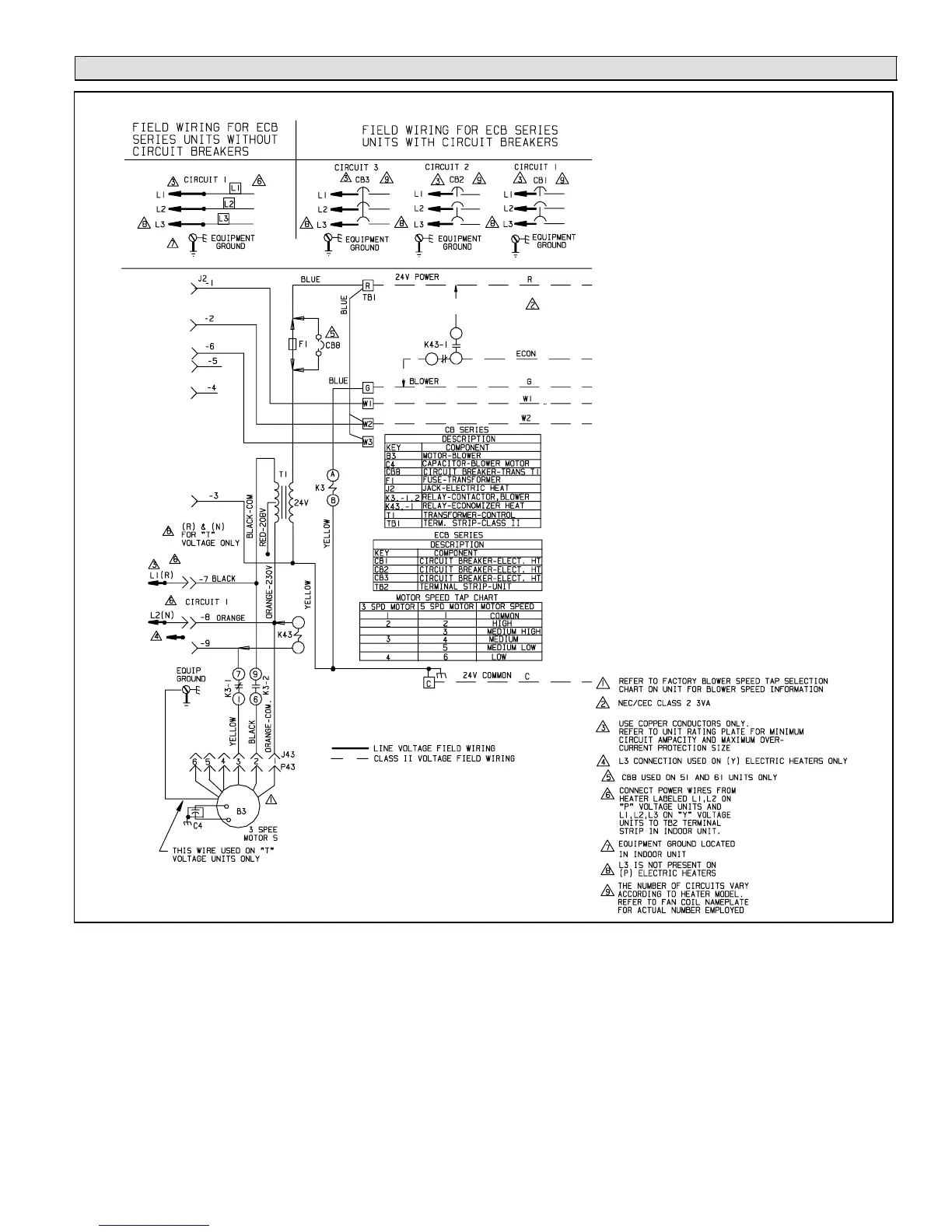
CB29M/CB30M SERIES
System Wiring Diagrams
CB29 & CB30 Typical Wiring Diagram − Single Phase
Figure 11

Other manuals for Lennox CB30M-65

Related product manuals