EasyManua.ls Logo

Lennox CBA27UHE-030

Lennox CBA27UHE-030
45 pages
To Next Page IconTo Next Page
To Next Page IconTo Next Page
To Previous Page IconTo Previous Page
To Previous Page IconTo Previous Page
Loading...
Page 43
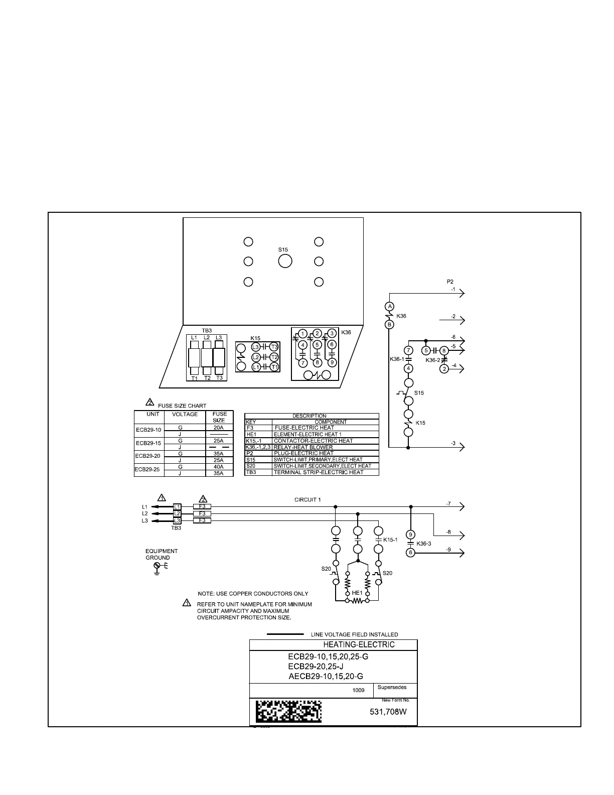
K-ECB29‐10, -15, -20 and -25CB - 460V THREE PHASE - SEQUENCE OF OPERATION
FIRST STAGE HEAT
1- When there is a call for heat, W1 of the thermostat
energizes the electric heat relays K32 and K34 with
24VAC.
2- When K32‐1 closes, the blower is energized on heat
ing speed.
3- When K32‐1 and K32‐2 closes, assuming the N.C.
primary (S15) and secondary (S20) limit switches
are closed, electric heat elements HE1 and HE2 are
energized.
4- When K34‐1 closes, assuming the N.C. primary (S15)
and secondary (S20) limit switches are closed, electric
heat element HE3 is energized.
SECOND STAGE HEAT
(remove jumper between W2 and R)
5- When K34‐2 closes, the unit is ready for a second stage
heat demand. W2 of the thermostat sends a second
stage heat demand, energizing the electric heat relays
K33 and K35 with 24VAC.
6- When K33‐1 closes, the blower (if not energized) is
energized on heating speed and economizer heat
relay K43 is energized (see 208/230VAC CB sche
matic).
7- When K33‐1, K35‐1, and K35‐2 contacts close, assum
ing the N.C. primary (S15) and secondary (S20) limit
switches are closed, electric heat elements HE4, HE5,
and HE6 are energized.

Other manuals for Lennox CBA27UHE-030

Related product manuals