EasyManua.ls Logo

Lennox CBX32M Elite Series

Lennox CBX32M Elite Series
18 pages
To Next Page IconTo Next Page
To Next Page IconTo Next Page
To Previous Page IconTo Previous Page
To Previous Page IconTo Previous Page
Loading...
Page 11
CBX32M SERIES
K22
S23
C
W1
O
Y1
RL
T
EC
W1
GOY1RL
T
COMMON
ELECTRIC HEAT
REVERSING VALVE
COMPRESSOR
POWER
SERVICE LIGHT
THERMISTOR
Y2
2ND STAGE COMPRESSOR
Y2
6
7
8
1
4
7
3
6
9
NOTE − ALL REMAINING WIRES
ARE FACTORY INSTALLED
THERMOSTAT HEAT ANTICIPATION
SETTING 0.4 AMP ELECTRIC HEAT
FACTORY INSTALLED JUMPERS
WHEN OUTDOOR THERMOSTAT IS
USED, CONNECT LEADS TO
TERMINALS R" AND W2" AND
REMOVE JUMPER BETWEEN
TERMINALS R’ AND W2."
EMERGENCY HEAT RELAY (USED
ONLY IF OUTDOOR T’STAT IS
USED) FIELD PROVIDED AND
INSTALLED NEW INDOOR UNIT.
24VAC 5VA MAX NEC/CEC CLASS 2
USING SERVICE LIGHT OPTION (S54) WITH SOME ELECTRONIC
THERMOSTATS MAY REQUIRE MOVING S54 COMMON WIRE TO Y1 IN
HEAT PUMP UNIT.
COMMON USED ONLY ON SOME THERMOSTATS.
Y2 USED ONLY WHEN TWO-SPEED COMPRESSOR IS USED (HP21)
AMBIENT COMPENSATING THERMISTOR CONNECTION USED ONLY ON
SOME THERMOSTATS.
LINE VOLTAGE FIELD
INSTALLED
CLASS 2 VOLTAGE FIELD
INSTALLED NEC/CEC
CIR-
CUIT 1
HEAT PUMP CLASS 2
VOLTAGE TERMINALS
CB1
CIRCUIT
BREAKER
OR FUSE
CIRCUIT BREAKERS
OR TERMINAL BLOCK
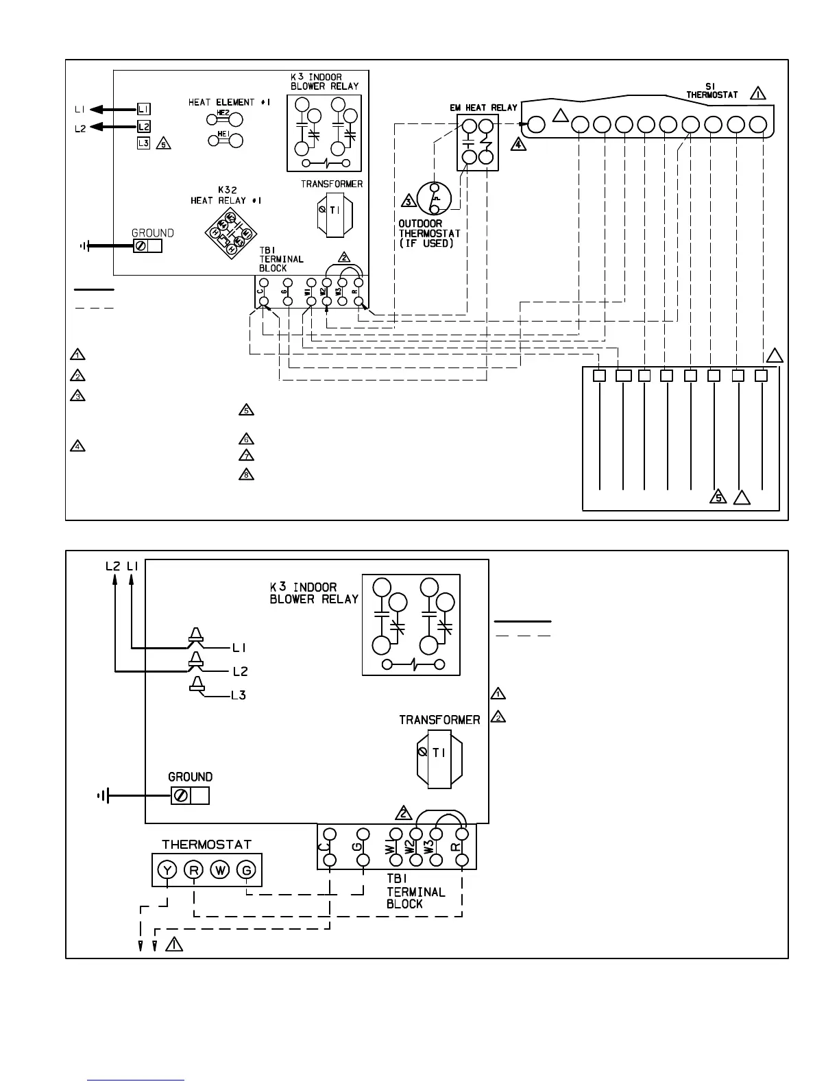
Figure 13. Typical Field Wiring − Heat Pump Application with Electric Heat
CIRCUIT 1
FIELD−SUPPLIED WIRE NUTS
1
4
7
3
6
9
(Black)
(Orange)
NOTE − USE COPPER CONDUCTORS ONLY.
REFER TO UNIT RATING PLATE FOR MINIMUM
CIRCUIT AMPACITY AND MAXIMUM OVERCUR-
RENT PROTECTION SIZE.
LINE VOLTAGE FIELD INSTALLED
CLASS 2 VOLTAGE FIELD INSTALLED
NEC/CEC
NOTE − ALL REMAINING WIRES ARE FACTORY
INSTALLED
TO EXTERNAL LOAD 24VAC AT .50 AMP MAXIMUM.
FACTORY INSTALLED JUMPERS
CB1 CIRCUIT BREAKER OR
FUSE
Figure 14. Typical Field Wiring − Cooling Only Application

Related product manuals