EasyManua.ls Logo

Lennox CG80TB - Venting; Vertical Venting

Lennox CG80TB
20 pages
Print Icon
To Next Page IconTo Next Page
To Next Page IconTo Next Page
To Previous Page IconTo Previous Page
To Previous Page IconTo Previous Page
Loading...
# 45464K003Page 6
For 100K, 125K, and 150K BTUH input models,
the minimum vent connector diameter is 5". The
transition from 4" diameter flue outlet to 5"
diameter pipe must be made at the flue outlet.
IMPORTANT
Printing inks, paint removers, varnishes, etc.
Cements and glues
Antistatic fabric softeners for clothes dryers
Masonry acid washing materials
Chlorinated laundry products
Hydrochloric acid
Venting
This furnace has a fan-assisted combustion system
designed for vertical venting into a suitable chimney or
listed gas vent, and is classified as a Category I furnace
as shipped from the factory.
If this furnace is used to replace an existing furnace,
it is possible that the existing venting system is not
suitable for venting this furnace. Furthermore, the
existing venting system may have to be modified to
properly vent any other gas appliance, such as a water
heater, that remains connected to it. Carefully read the
Vertical Venting, Sidewall Venting, and Existing Vent
Systems sections that follow to determine proper venting
practices for the installation.
Installation shall be in accordance with Parts 7 and 11 of
the National Fuel Gas Code, ANSI Z223.1/NFPA 54 (latest
edition) and/or Section 7 and Appendix B of the CSA
B149.1, Natural Gas and Propane Installation Codes
(latest edition); local building codes; vent manufacturer
instructions; and these instructions.
Vertical Venting
Category I furnaces must be vented vertically or nearly
vertically. Common venting and multistory venting are
permitted when done in accordance with applicable codes,
such as local and national codes.
The venting system should be designed in accordance with
the FAN columns in the venting tables in the latest editions
of the National Fuel Gas Code, ANSI Z223.1/NFPA 54 or the
CSA B149.1, Natural Gas and Propane Installation Codes.
1. Consult local building codes for installation require-
ments.
2. The vent connector should be as short as possible with
the least number of elbows and angles to do the job.
3. It is recommended a minimum of 26 gauge galvanized
flue pipe be used. Use of single-wall vent pipe for the
vent connector is permissible only in conditioned
space. Use Doublewall Type B vent pipe through
unconditioned space such as attics and crawl
spaces. The vent material used should be in accor-
dance with the National Fuel Gas Code, ANSI Z223.1/
NFPA 54 (latest edition) or the CSA B149.1, Natural
Gas and Propane Installation Codes and local codes.
Fan-assisted combustion system Category I furnaces
shall not be vented into single wall metal vents.
4. The vent connector must have an upward slope toward
the chimney on all horizontal runs of at least 1/4" per
foot of horizontal run and should be supported by a
sheet metal strap. The vent pipe connection must be
secured to the induced draft blower outlet. A single
screw is sufficient. On G1N80BR and CG80RB models,
a hole in the door hook will allow access to the blower
outlet without removing the door hook.
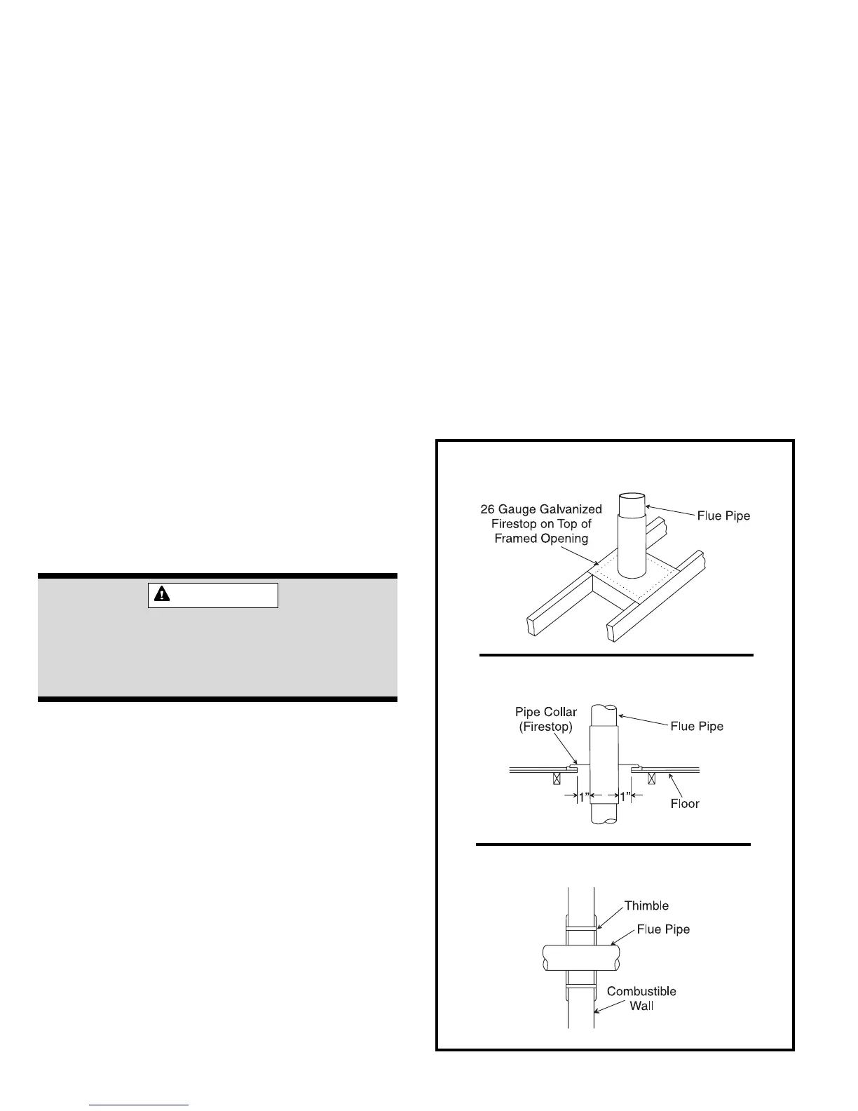
5. All vents passing through floors, ceilings, and walls
must be firestopped according to the requirements of
the National Fuel Gas Code (see Figure 7).
Figure 7
Vent Through Ceiling
Vent Through Floor
Vent Through Wall

Related product manuals