EasyManua.ls Logo

Lennox DTH3530 - Combustion Air; Location Selection

Lennox DTH3530
26 pages
Print Icon
To Next Page IconTo Next Page
To Next Page IconTo Next Page
To Previous Page IconTo Previous Page
To Previous Page IconTo Previous Page
Loading...
Page 4
5 - Warn the homeowner against leaving young children
unsupervised in the room with the appliance.
6 - Due to high temperatures, locate the appliance out of
traffic and away from furniture and draperies.
7 - Instruct the homeowner not to leave damp or wet
clothing or other flammable material to dry on or near
the appliance.
8 - Keep the appliance area clear and free of combustible
materials, gasoline and other flammable vapors and
liquids.
9 - On initial start-up, operate the appliance continuous-
ly for 10 to 12 hours on the high flame setting. During
this period, make sure that the room is well venti-
lated. This “break-in” procedure is required to burn
off the odors associated with a new fireplace.
Combustion Air
These Lennox Merit
t
Series vented gas fireplaces / vented
gas fireplace heaters have been designed to use 100 per-
cent air from outdoors for combustion.
WARNING
Do not install appliance in a corrosive or contaminated
atmosphere. Meet all combustion and ventilation air
requirements, as well as all local codes.
Location Selection
Install the fireplace out of direct sunlight to maximize the
unit’s visible glow effect. Also, consider the following
when selecting a location for the Lennox vented gas fire-
place / vented gas fireplace heater :
1 - All requirements indicated in venting section must be
met. This includes restrictions on horizontal and ver-
tical vent lengths and vent termination locations.
2 - Center appliance between two wall studs, ifpossible,
to simplify venting.
3 - If optional blower is used, consider power wiring re-
quirements.
4 - Air circulation patterns should be unobstructed.
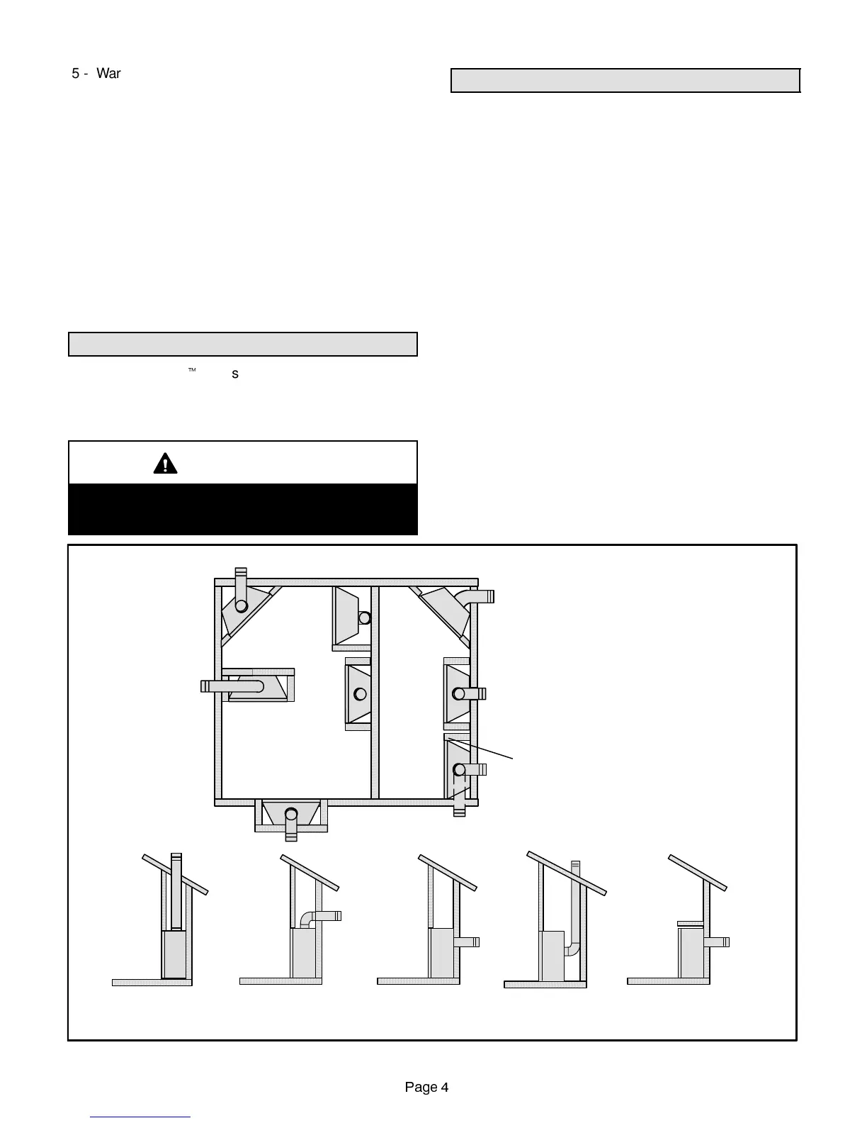
5 - See figure 2 for typical appliance applications.
6 - Do not install appliance directly on carpeting.
7 - If fireplace is to be installed on tile or other combus-
tible material other than wood flooring, it must be
installed on a metal or wood panel extending the full
width and depth of the base.
8 - Provide aminimum3ft.(.9m) clearance in front of the
appliance for service and proper operation.
TYPICAL APPLIANCE APPLICATIONS
VERTICAL VENT
(Top Vent
Application)
*INSTALLATION WITH ONE SIDE OF UNIT
FLUSH WITH A WALL (Opposite wall must
not extend beyond front of fireplace.)
*RECESSED INSTALLATION
(Side walls must not extend
beyond front edges of
fireplace.)
TOP VENT
APPLICATION
TOP VENT
APPLICATION
REAR VENT
APPLICATION
HORIZONTAL VENT
(Rear Vent Application
With a chase)
HORIZONTAL VENT
(Rear Vent Application
without a chase)
HORIZONTAL VENT
(Top Vent
Application)
VERTICAL VENT
(Rear Vent
Application)
REAR VENT
APPLICATION
TOP VENT
APPLICATION
TOP VENT
APPLICATION
*Note - The side walls of mantels may protrude
beyond the front face of the fireplace a maximum
of 5 inches (127mm). See figure 3 for mantel
clearances above the fireplace.
Note - DT/DTH models have only a top flue outlet .
DR/DRH models have only a rear flue outlet.
FIGURE 2

Related product manuals