EasyManua.ls Logo

Lennox ECOLEAN EAC 1604SM - Page 19

Lennox ECOLEAN EAC 1604SM
40 pages
Print Icon
To Next Page IconTo Next Page
To Next Page IconTo Next Page
To Previous Page IconTo Previous Page
To Previous Page IconTo Previous Page
Loading...
18
FS
B1
B2
LP1
PT1
CH
HP1
DT
SVR
B1
B2
FS
LP1
SV
CH
HP1
SVR
PT1
DT
B1
B2
FS
LP1
SV
CH1
HP1
SVR
PT1
DT
CH2
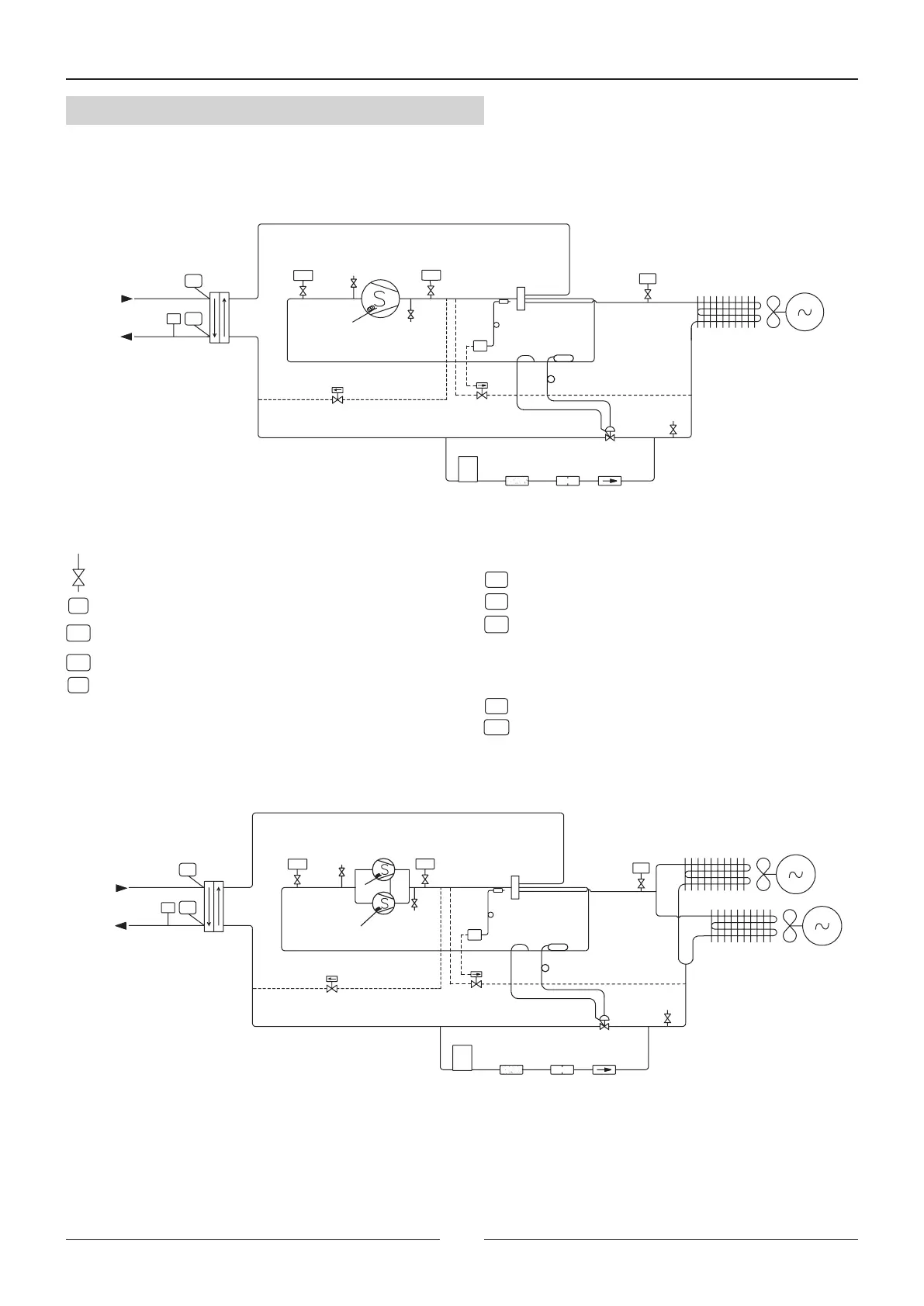
1.8.- PIPING DRAWINGS
HEAT PUMP UNITS EAR 0251SM TO 0431SM
Pressure gauge
Flow switch (option in standard version)
Water inlet probe (water inlet regulation)
Water outlet probe (anti-freeze protection)
Low pressure switch cooling cycle
Pressure transducer:
-Cooling: Condensing pressure control
-Heat pump: Defrost start
Defrost end
Low pressure switch heating cycle
Crank case heater
High pressure switch
HEAT PUMP UNITS EAR 0472SM TO 0812SM
Water inlet
Water
outlet
Plate
exchanger
Expansion
valve
Filter drier
Coil
Fan motor
Scroll
compressor
Hot gas injection valve (option) cooling
mode
Check valve
Restrictor
Liquid
receiver
Solenoid valve-Heating
(option)
4 - way valve
Discharge Thermostat
(option)
Water inlet
Water
outlet
Plate
exchanger
Expansion
valve
Filter drier
Coils
Fan motor
Scroll compressor
Hot gas injection valve (option) cooling
mode
Check valve
Restrictor
Liquid
receiver
Solenoid valve
-Heating
(option)
4 - way valve
Discharge Thermostat
(option)
Discharge Thermostat (Heating low ambient kit -15ºC option)
Solenoid valve (Heating low ambient kit -15ºC option)
1.- GENERAL CHARACTERISTICS
Scroll compressor

Related product manuals