EasyManua.ls Logo

Lennox ECOLOGIC Series - Page 67

Lennox ECOLOGIC Series
98 pages
Print Icon
To Next Page IconTo Next Page
To Next Page IconTo Next Page
To Previous Page IconTo Previous Page
To Previous Page IconTo Previous Page
Loading...
Installation - Operation - Maintenance manual CHILLERS • ANNEXES - 0105-E • 65 •
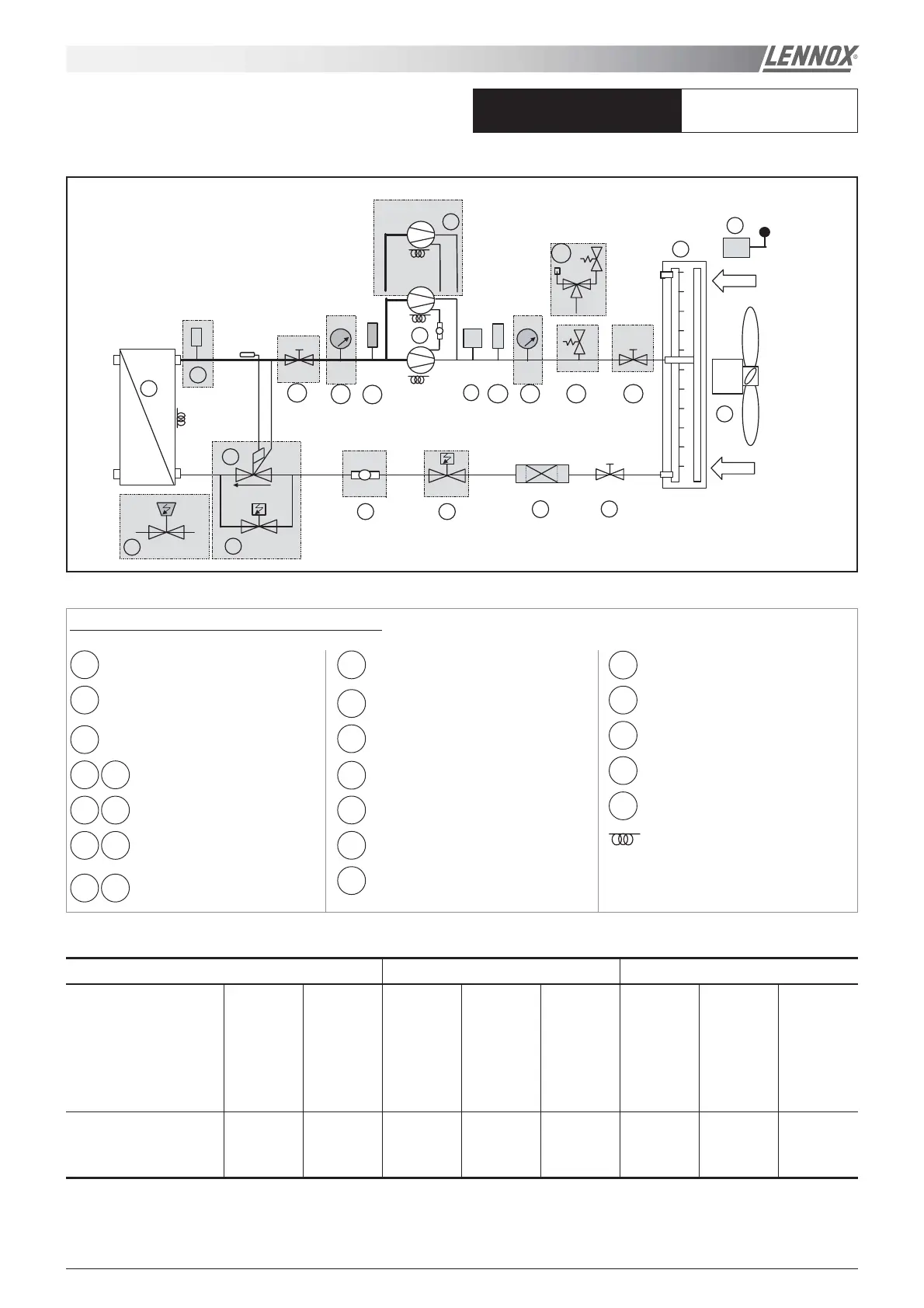
ECOLOGIC - REFRIGERATION CIRCUIT
REFRIGERANT DRAWING
std/ln/he/sln
wa - ek - dk
M
09
P
17
08
03
S
HP
T
P
18
11
1213
S
01
05a
05b
10
16
04b
04a 06a
06b
19
T
ext
CE
UDT
07a
07b
15
14
02
S
370 STD/LN/HE/SLN
P P
REFRIGERATION CIRCUIT COMPONENTS
1st & 2nd scroll compressors
3rd scroll compressor on size
370 STD/LN/HE & SLN
High pressure switch
Pressure transducers HP & BP
Low and High pressure
manometer
Suction and discharge isolation
valves
Safety valve CE or UDT
Air cooled condenser
Fan motor
Manual isolating valve
Filter drier
Solenoïd valve
Sight glass
Thermostatic expansion valve
Expansion valve bypass for low
ambient operations
Electronic expansion valve
Evaporator heat echanger
Suction temperature sensor
External temperature sensor
Heating resistance (option)
01
02
03
04a 04b
05a 05b
06a 06b
07a 07b
08
09
10
11
12
13
14
15
16
17
18
19
Airflow
Airflow
VARIANTS EXPANSION DEVICE OPTIONS
BASIC UNIT
Size 370
STD/LN/
HE/SLN
WA unit
CE or UDT
Thermostatic
expansion
valve
Thermostatic
expansion
valve +
low
ambient
Electronic
expansion
valve
HP/LP
pressure
gauges
Suction
and
discharge
isolating
valve
Sight
glass
01/03/04a/04b/
08/09/10/11/17/19
Add 02 07a or 07b
Add 14 &
12
Add 14, 12
& 15
Add 16 &
18
Add 05a &
05b
Add 06a &
06b
Add 13

Related product manuals