EasyManua.ls Logo

Lennox ECOLOGIC Series - Page 68

Lennox ECOLOGIC Series
98 pages
Print Icon
To Next Page IconTo Next Page
To Next Page IconTo Next Page
To Previous Page IconTo Previous Page
To Previous Page IconTo Previous Page
Loading...
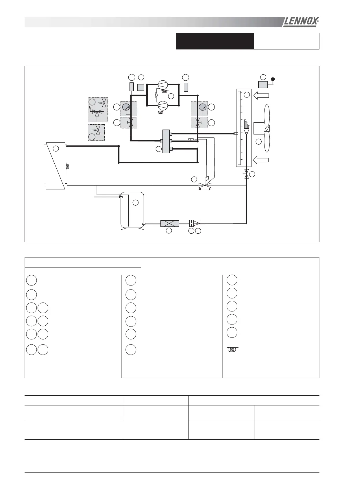
• 66 • Installation - Operation - Maintenance manual CHILLERS • ANNEXES - 0105-E
ECOLOGIC - REFRIGERATION CIRCUIT
REFRIGERANT DRAWING
150/200D/230D
waH
REFRIGERATION CIRCUIT COMPONENTS
1st & 2nd scroll compressors
High pressure switch
Pressure transducers HP & BP
Low and High pressure
manometer
Suction and discharge isolation
valves
Safety valve CE or UDT
Air cooled condenser/Evaporator
Fan motor
Manual isolating valve
Filter drier
Thermostatic expansion valve
Evaporator/Condenser heat
exchanger
External temperature sensor
Heating resistance (option)
01
03
04a 04b
05a 05b
06a 06b
08
09
10
11
14
17
19
Airflow
Airflow
20
21
22
23
Check valve
Restrictor
4-way inverting valve
Liquid receiver
08
M
09
23
YV
99
22
17
11
20
03
01
HP
10
S
S
P
P
04a
C1
04b
05a
06a
05b
06b
21
14
19
T
ext
P
P
07a
07b
07a 07b
BASIC UNIT VARIANT OPTIONS
Basic unit CE or UDT HP/LP pressure gauges Suction and discharge
isolating valves
01/03/04a/04b/19/22/08 07a or 07b Add 06a/06b Add 05a/05b
09/10/11/23/20/17/14/21

Related product manuals