EasyManua.ls Logo

Lennox G32V5-100 - Vsp2−1

Lennox G32V5-100
91 pages
To Next Page IconTo Next Page
To Next Page IconTo Next Page
To Previous Page IconTo Previous Page
To Previous Page IconTo Previous Page
Loading...
Page 14
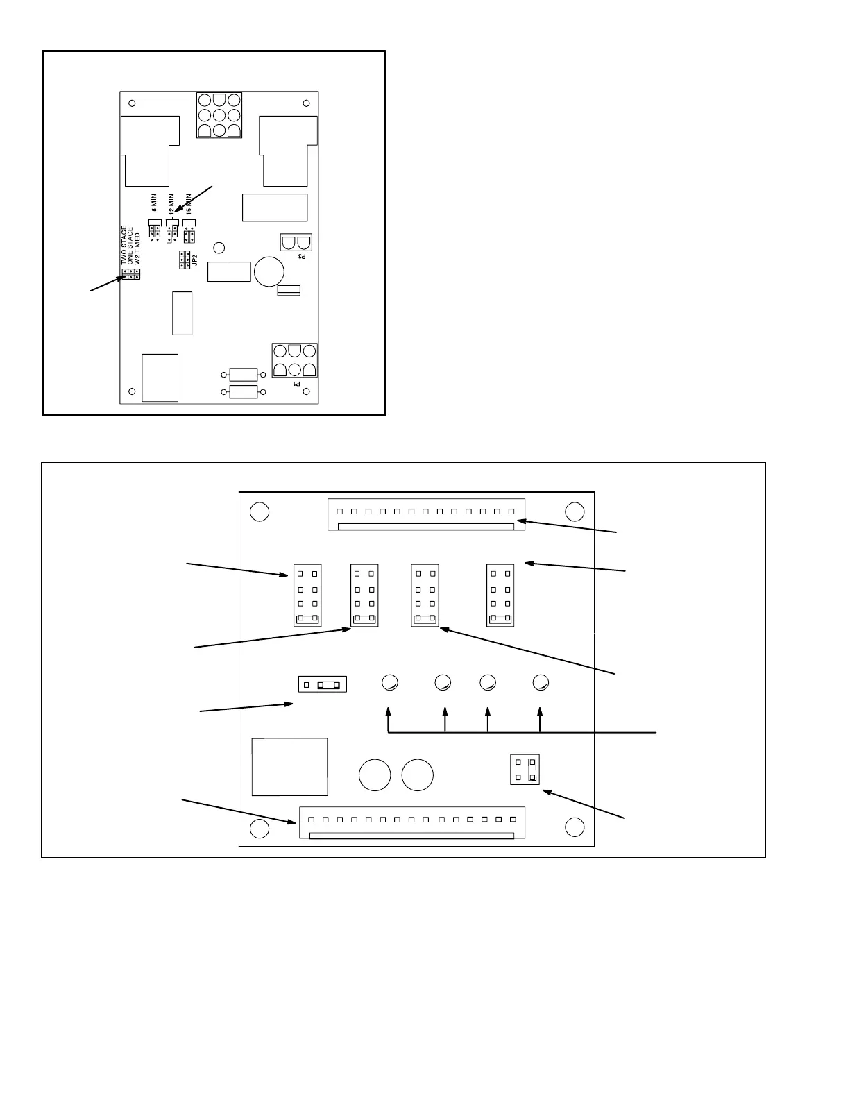
FIGURE 10
TWO−STAGE CONTROL BOARD
MODE OF
OPERATION
JUMPER
W2 TIMED ON
DELAY JUMPER
6.VSP21 Blower Control Board (A24)
G32V −1 / −3 units
G32V units are equipped with a variable speed motor that is
capable of maintaining a specified CFM throughout the ex-
ternal static range. The unit uses the VSP2−1 variable
speed control board, located in the blower compartment,
which controls the blower speed and provides diagnostic
LEDs. The control has both a non−adjustable, factory preset
ON" fan timing delay and an adjustable OFF" fan timing delay
(see figure 13).
The VSP2−1 also senses limit trip condition and turns on the
blower. The G32V limit switch is located in the middle of the
vestibule wall. When excess heat is sensed in the heat ex-
changer, the limit switch will open and interrupt the current
to the gas valve, while at the same time the VSP2−1 energizes
the blower on heating speed. The limit automatically resets
when the unit temperature returns to normal and the blower is
de−energized.
Diagnostic LEDs located on the VSP2−1 control board are pro-
vided to aid in identifying the unit’s mode of operation. Certain
scenarios will arise depending on the jumper positions. Refer
to figure 11 for identification.
JP2
HIGH LOW ADJUST HEAT
CFM
HI/LOW
ON/OFF
HEAT
HTG.
BLOWER
12
DS2
DS3
DS1
DS4
1
2
3
4
1
2
3
4
1
2
3
4
TEST
+
NORM
210
150
90
270
JP1
VSP2−1 VARIABLE SPEED CONTROL BOARD SELECTIONS
DIAGNOSTIC
DS LEDS
FAN OFF"
TIMING PINS
JP46
13 PIN PLUG
(BOARD TO MOTOR)
HEATING STAGE
JUMPER SELECTOR PINS
JP73
15 PIN PLUG
(BOARD TO VARIOUS
POINTS IN FURNACE)
HIGH SPEED
SELECTOR PINS
(COOLING ONLY)
LOW SPEED
SELECTOR PINS
(COOLING, HEATING and
CONTINUOUS FAN)
HEATING SPEED
SELECTOR PINS
OPERATIONAL
SELECTOR PINS
(Affects both heating
and cooling modes)
1
1
See table 11 for VSP2
factory settings
FIGURE 11

Related product manuals